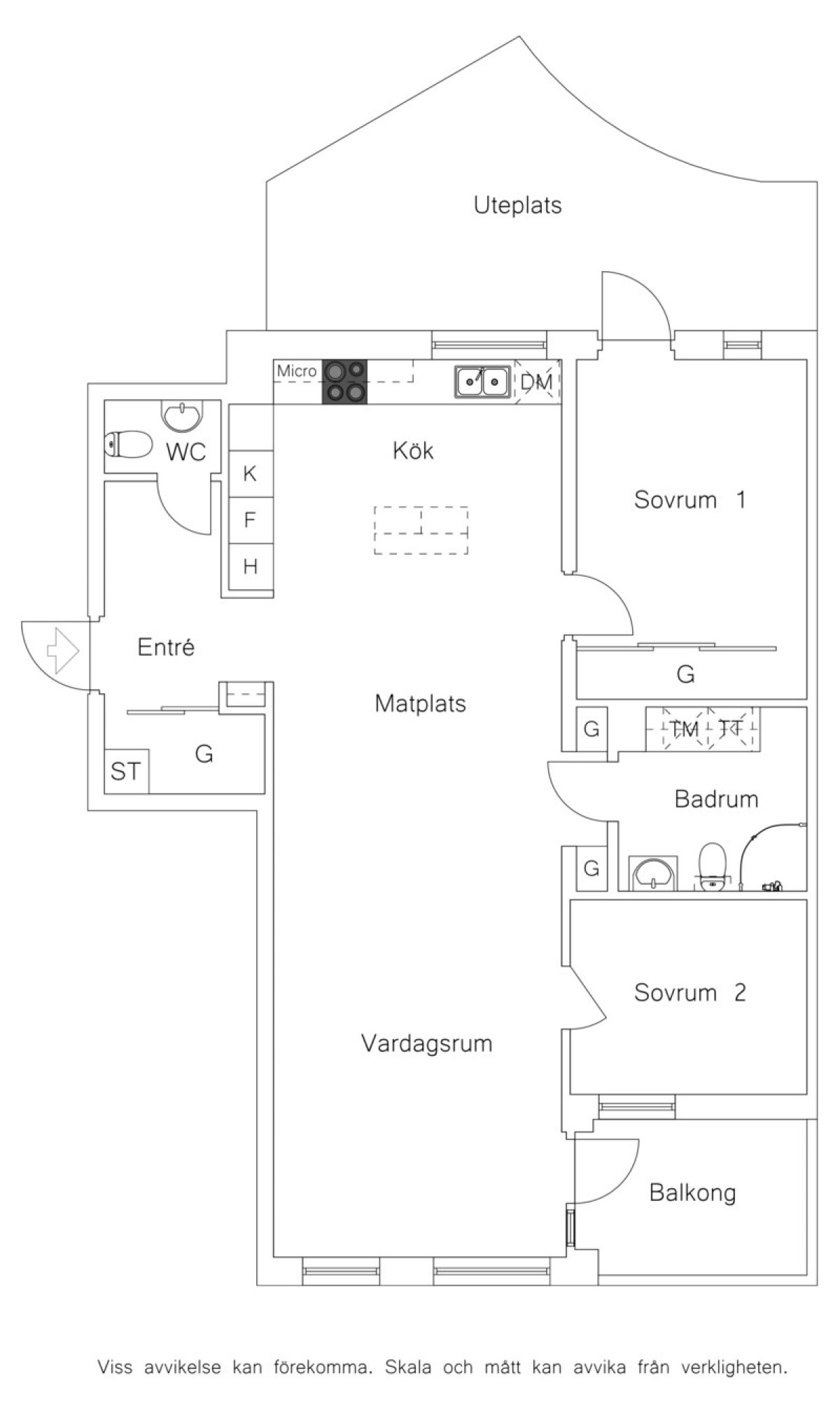
Entré/Hall
Parkettgolv och målad väggar. Bra förvaring genom garderober.
Gäst W/C
Just denna 3:a erbjuder förutom badrum även gäst W/C. Klinker på golv, toalett och vask.
Köksavdelning
Trevligt planerat kök med öppen planlösning mot vardagsrum. Parkettgolv och målad väggar. Kyl, frys, mikro, inbyggnadsugn och diskmaskin samt bra förvaring genom inredningen som går i vitt och gott om arbetsytor genom köksbänkar.
Vardagsrum
Rejält vardagsrum med plats för både matplats och soffavdelning. Härifrån nås även balkongen som placeras i fint västerläge och dessutom är infälld och därmed skyddad från regn. Genom hela vardagsrummet och matplatsen löper genomgående parkett och alla väggar är släta och målade. Vardagsrummet erbjuder även smart förvaring vid badrummet genom dubbla garderober.
Sovrum 1
Större av sovrummen som dessutom erbjuder bra förvaring genom skjutdörrsgarderober. Plats för dubbelsäng och samma genomgående parkettgolv samt släta målade väggar. Härifrån nås även uteplatsen på innergården.
Sovrum 2
Mindre av sovrummen. Parkett på golv och släta målade väggar. Förvaring genom garderob.
Badrum/Tvättavdelning
Stort badrum som även fungerar som bostadens tvättavdelning. Helkaklade väggar och klinker på golv. Utrustat med dusch, toalett, tvätt kommod, tvättmaskin, torkmaskin samt arbetsbänk.
Balkong/Uteplats/Gårdsbeskrivn
Markplans läget ger dubbla uteplatser genom balkong ut mot Centralgatan och uteplats mot innergården. Samfälligheten disponerar en fin innergård med flertalet uteplatser och grillytor. Här finner vi även stort förråd och parkeringsplatser.

