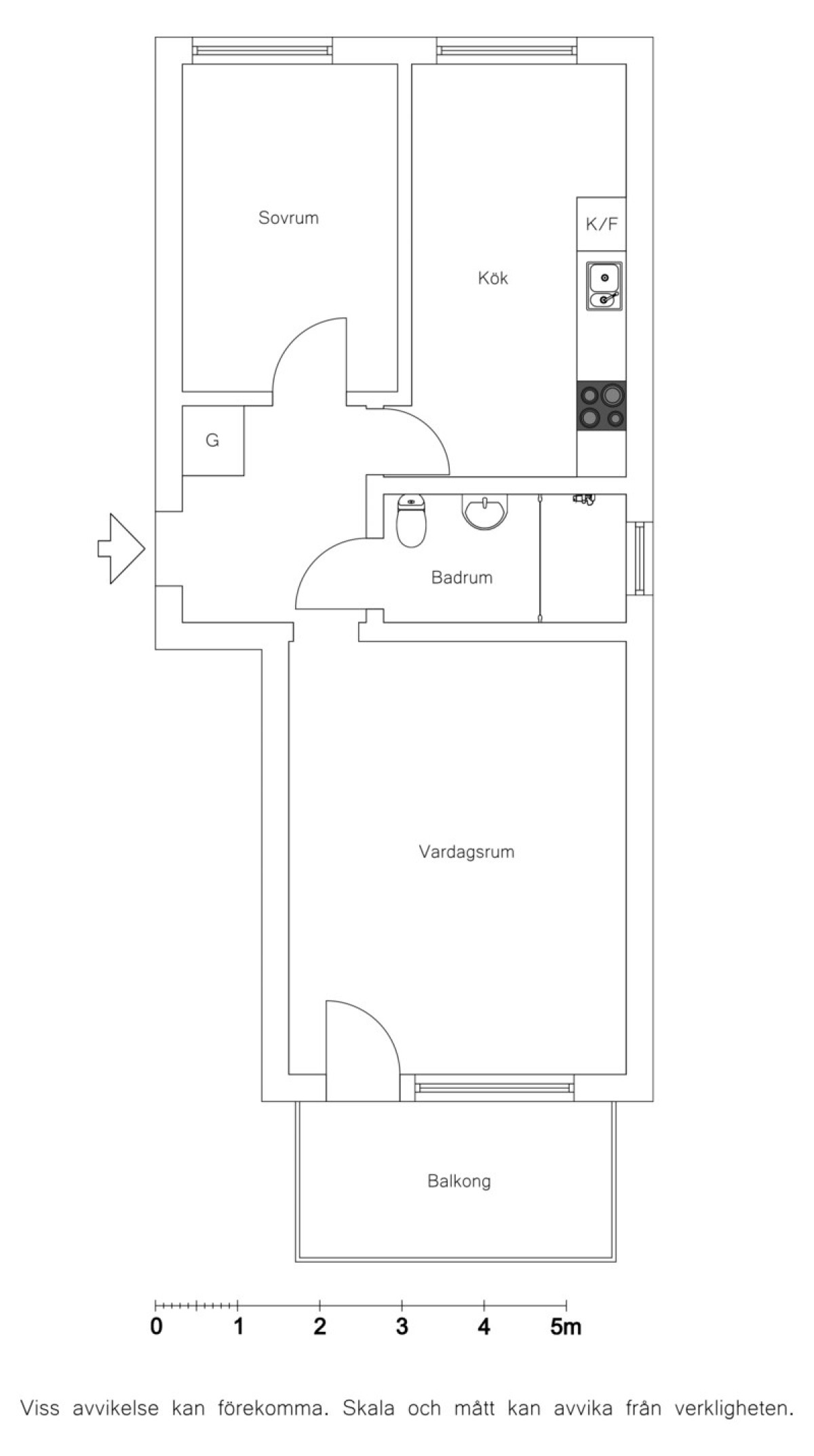
Hall
Välkomnande hall med plats för avhängning direkt till vänster. Hallen är bostadens centrala del och leder oss till samtliga rum. Vita släta väggar samt ljust golv.
Sovrum
Från hallen når vi det lilla men ack så mysiga sovrummet. Rummet vetter in mot "innergården" vilket bidrar till ett tystare och mer behagligt rum överlag. Här ryms som tidigare nämnt en 180cm säng beroende på placering samt en bra garderob som utgör rummets förvaring. Vita släta väggar samt ljust golv.
Kök
Trivsamt och modernt kök som fick sig en renovering för ca 7-8 år sedan. Köket är inrett med vita luckor, en varm bänkskiva i ek samt ett stilrent vitt kakel på vägg. En naturlig plats för matgrupp om 4 personer finner vi intill kökets stora fönster som även bidrar med ett härligt ljus. Kökets maskinpark består av en kombinerad kyl/frys, spishäll, ugn, diskmaskin (mindre modell) samt fläkt.
Vardagsrum
Ett rejält och trivsamt rum med plats för såväl soffa som matgrupp. På golvet vilar ett ljust golv medans väggarna är målade i en dov beige nyans som möts av en snygg wood-on-wall detalj. Från vardagsrummet når vi bostadens underbara balkong.
Badrum
Ett mycket smakfullt och renoverat badrum med vitt kakel på vägg samt ljusgrå klinker på golv. Utrustat med dusch, toalett, kommod, handdukstork, överskåp, spegel med belysning samt infällda spotlights i tak.
Område Slottshöjden
Slottshöjden är välbeläget i innerstadens norra delar, härifrån har man gångavstånd till stora delar av stadens utbud. Service och kommunikation finns nära tillhands, både Stattena men också 200m från porten.

