Genomgående i bostaden (förutom i badrummet) ligger ett slitstarkt ekparkett och väggarna är vita.
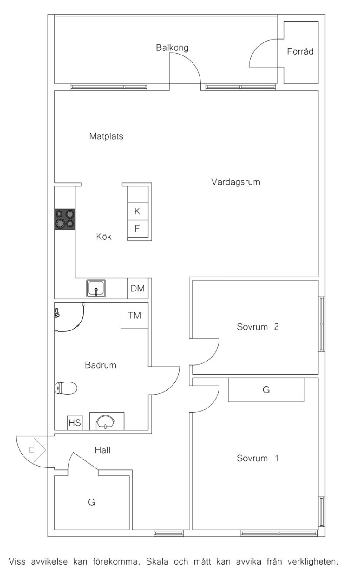
Hall:
När ni har tagit hissen upp till våning 3 och öppnar dörren så välkomnas ni av en rymlig hall med plats för avhängning. Precis till höger har ni tillgång till en generös garderob där ni får plats med kläder och skor. I hallen finns även ett mindre utrymme som är perfekt att forma som en kontorshörna om så önskas. Från hallen nås samtliga rum i bostaden.
Vardagsrum:
Vardagsrummet ligger i vinkel med matplatsen och är delvis skyddat från köket. Här får ni plats med en generös soffgrupp och annat önskat möblemang. De stora fönsterpartierna ger ett fint ljusinsläpp. Från vardagsrummet når ni även den stora, inglasade balkongen som bjuder på en härlig utsikt över trädtopparna. Ute på balkongen finns även ett förråd.
Kök:
Ett fräscht kök som erbjuder god arbetsyta och förvaringsmöjligheter i de ljusgröna skåpen och lådorna. Köket har 2017 uppdaterats med nytt ekparkett, bänkskiva i trä, marmorplattor som stänkskydd, nya vitvaror såsom kyl & frys (Samsung), spisugn (Bosch), spisfläkt och diskmaskin (Bosch). Intill ligger matplats för upp till 8 personer och med stora fönster mot balkongen.
Sovrum 1:
Ett stort sovrum som erbjuder plats för dubbelsäng och annat önskat möblemang. Fönster i två olika väderstreck som bidrar till ett härligt ljusinsläpp. Garderob med spegeldörrar på ena sidan där ni får plats med era kläder.
Sovrum 2:
Sovrum med plats för säng och annat önskat möblemang.
Badrum:
Helkaklat badrum renoverat 2017 med marmorplattor. Badrummet är utrustat med dusch och duschdörrar i glas, wc, tvättmaskin, vask med kommod undertill, högsskåp samt spegelskåp.

