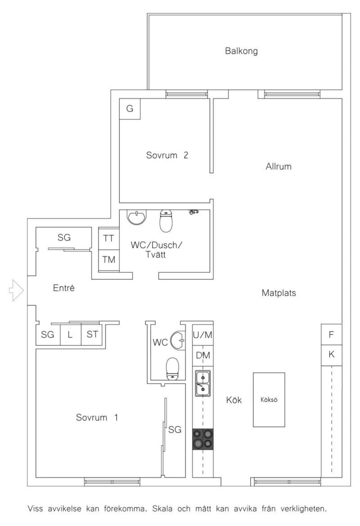
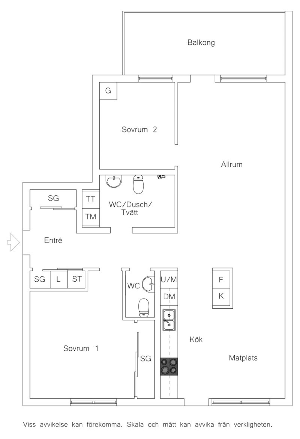
Hall
Ett kliv innanför tröskeln öppnar sig en mycket rymlig hall med goda förvaringsmöjligheter bakom dubbla skjutdörrsgarderober. På golv ligger ett ljust pigmenterat parkettgolv och väggarna är vita.
Kök
Det ensidiga köket ger gott om förvaring i både över- och underskåp samt goda arbetsytor ovan en lång laminatbänkskiva. Här finns all maskinell utrustning du kan tänkas behöva med hel kyl och frys, ugn och micro i arbetshöjd, diskmaskin och spotlights ovan arbetsytan. Köket har ett naturligt ljusinsläpp med stora fönster och fransk balkong mot Henckels torg och ytor som ger plats för matbordet åt 4-5 personer samt vitrinskåp. På Golv ligger ett ljust pigmenterat parkettgolv och väggarna är vita.
Vardagsrum
Vardagsrummet är generöst till sin storlek och huserar idag både stor soffa samt ett större matbord. Med sin semiöppna planlösning från köket ges ett mycket sammanvävt och generöst utrymme för det stora sällskapet likväl som för de mer intima stunderna med familjen.
Från vardagsrummet når vi även bostadens balkong som har ett perfekt läge åt väster mot föreningens innergård. Balkongen är mycket rymlig med plats för både stolar och en loungemöbel att slå sig ned i under eftermiddagens varma, sköna timmar.
Sovrum 1
Bostadens Master Bedroom är mycket tilltaget i sin storlek och ger utrymme till både den stora dubbelsängen, vardera sida ett nattduksbord och en stor byrå utan att förlora rummets rymlighet. Längs med ena väggen ges ordentligt med förvaring bakom speglade skjutdörrsgarderober, på golv ligger ett ljust pigmenterat parkettgolv och väggarna är vita.
Sovrum 2
Det mindre sovrummet angränsar till vardagsrummet och är perfekt i storleken för gästen, som hemmakontor eller för barnet. Idag står både en enkelsäng, garderob och skrivbord. På golv ligger likadant ljust pigmenterat parkettgolv som i övriga lägenheten och väggarna är vita.
Badrum & Gäst-WC
Det större badrummet är utrustat med extra tillval. Här ges ett lyxigt intryck med stora, mörka kakelplattor på väggar och storleken mindre klinkerplattor på golv. Inredningen består av vägghängd WC, dusch med glasväggar, skålformat handfat med kommod och spegelskåp ovan, tvättmaskin och torktumlare med arbetsyta ovan samt överhängande skåp. Självklart är det spotlights i tak, golvvärme och handukstork.
Gästtoaletten är enklare i sitt utförande men fortfarande helkaklat med mörkare klinker på golv och vitt kakel på väggar. Även här finns vägghängd WC och handfat med kommod samt spegel ovan.

