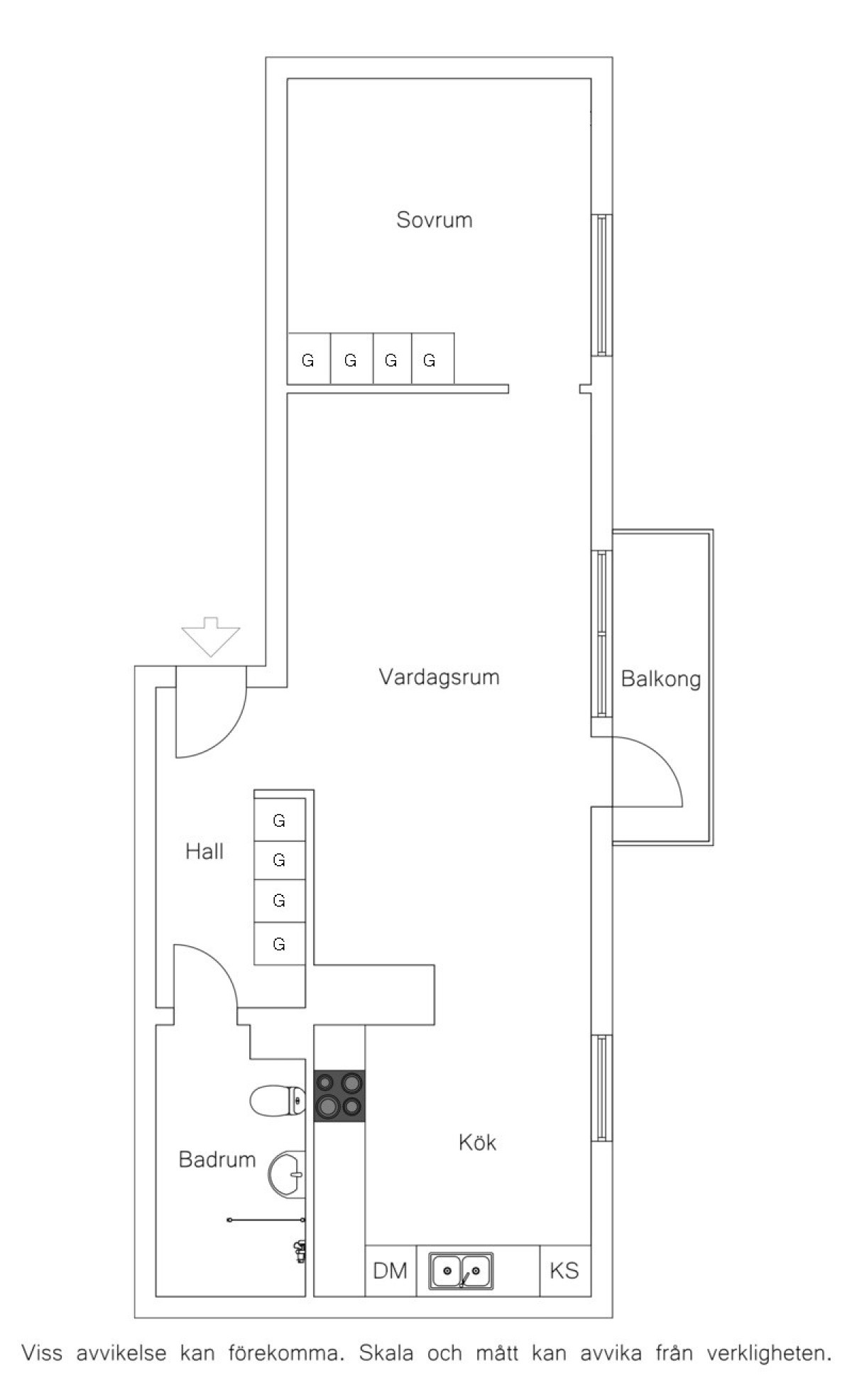
HALL
Välkomnande hall med både avhängningsmöjlighet och gott om förvaring i stor skjutdörrsgarderob längs ena väggen.
Rakt fram från entrén, ett par steg in genom hallen hittar vi badrummet.
Ljus laminat som golv.
VARDAGSRUM
Stort och rymligt med bra disponerade ytor som möjliggör både en större soffhörna och antingen en bra arbetsplats eller plats för matbord.
Stora fönster vetter ut mot den gröna innergården och här finns även utgång till den trevliga och väl tilltagna balkongen.
Ljus laminat som golv.
KÖK
Kök med gott om både skåpsutrymme och arbetsytor.
Skåp och luckor är vita medan bänkskivan är svart med mindre kakel i gråsvart nyans som stänkskydd ovan.
I köket finns kombinerad kyl/frys och spis med häll i rostfritt samt diskmaskin och fläkt.
I köket finns också utrymme för matbord. Golvet är även här laminat i ljus ton.
BADRUM
Helkaklat badrum med vitt kakel på väggarna och klinker i gråsvart ton på golvet. Utrustningen i övrigt består av duschkabin, tvättmaskin, handfat med kommod inunder och wc.
SOVRUM
Bra planerat sovrum med plats för dubbelsäng. Fönster i lugnt läge mot innergård och förvaring erbjuds i garderober längs ena väggen.

