Entréplan
Bostadens entréplan huserar ett u-format kök i öppen planlösning mot både matplats och vardagsrum med balkong intill. Ytan i sig är väldigt social och vyerna mot havet är konstanta. Invid hallen ligger även ett badrum med duschmöjlighet och under trappan till ovanvåningen en rymlig klädkammare. På entréplan ligger parkettgolv av ek från 2012.
Hall
Ett kliv över tröskeln nås hallen med praktiskt klinker på golv och garderob bakom skjutdörrspartier med frostat glas. Väggarna är vita.
Kök
Köket är från kvalitativa HTH med inredning av körsbär och kompletterades med överskåp 2005. Maskinparken består av Kyl och frys (2024) inbyggnadsugn och inbyggd mikrovågsugn, spishäll, köksfläkt och diskmaskin (2021). Köket avdelas mot matplats och vardagsrum med köksö.
Matplats & Vardagsrum
I den öppna planlösningen ges matplats och vardagsrum i ett. Med dagens möblemang är matplatsen placerad utmed de stora fönsterpartierna och vid utgången till balkongen ligger vardagsrumsdelen.
Badrum BV
Badrummet är helkaklat med klinker på golv och kakel på väggar. Inredningen består spotlights ovan kommod med handfat, handukstork och duschhörna från 2024.
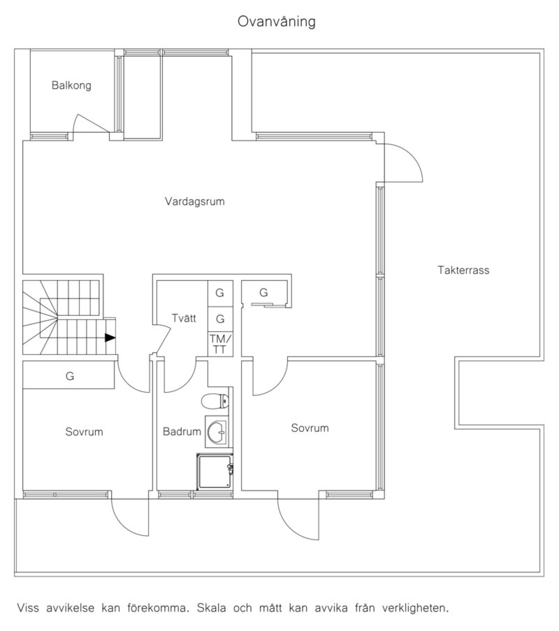
En Trappa upp
Ovanvåningen huserar samtliga sovrum och det större badrummet. Här ges även tillgång till den stora takterrassen som omsluter lägenheten i dess gavelläge. En fantastisk yta för sociala umgängen eller för att bara sitta och njuta av vyerna under lugna hemmakvällar.
Allrum
Allrummet på ovanvåningen ger plats åt både läs- och TV-hörna. Tidigare ägare har byggt på delar av den "öppning" som är mellan våningsplanen vilket gett extra kvadratmeter till boarean och möjligheten till att sittandes blicka ut över Kronborg. Väggarna är vita och på golv ligger parkettgolv.
Sovrum 1
Rymligt sovrum med vita väggar, dubbla glaspartier högt upp och helglasad altandörr som leder till takterrassen. Utanför sovrummet finns en inbyggda garderob med skjutdörrar och en naturlig plats för skrivbordet att stå. På golv ligger ett parkettgolv.
Sovrum 2
Andra sovrummet ligger invid trappan och är utrustat med garderober. På golv ligger parkettgolv och det finns både fönster högt upp på väggen samt helglasad balkongdörr ut mot takterrassen.
Badrum & Tvättstuga
Med dörr från hallen nås lägenhetens tvättrum. Här ligger ett klinker på golv och väggarna är halvkaklade. Här står en tvättmaskin från Miele (2024) samt torktumlare och dubbla garderober.
Med egen dörr från tvättrummet nås ovanvåningens badrum. Även det är helkaklat med klinker på golv och kakel på väggar. Inredningen består av Spotlights ovan badrumskommod med handfat, handdukstork, väggfasta skåp, WC samt dusch med duschdörrar.
Takterrass
Terrassen sträcker sig över tre väderstreck. Från solens absolut bästa timmar i söder med utsikt mot Öresund, de vackra fasaderna från sekelskiftet längs Karl Johans Gata i öster och avslutningsvis mot solnedgången som under sommartid dyker ned i horisonten mot Kattegatt. Det finns tre utgångar till takterrassen, två från sovrummen och en från vardagsrummet. Här sitter man ovan trädkronorna och oavsett vilket håll du tittar åt sträcker sig utsikten långt. Run om sitter mindre belysning som tänds när solen går ned. Det ges flera möjligheter till sittgrupper, grill och solstolar ovan både trädäck och stenläggning.

