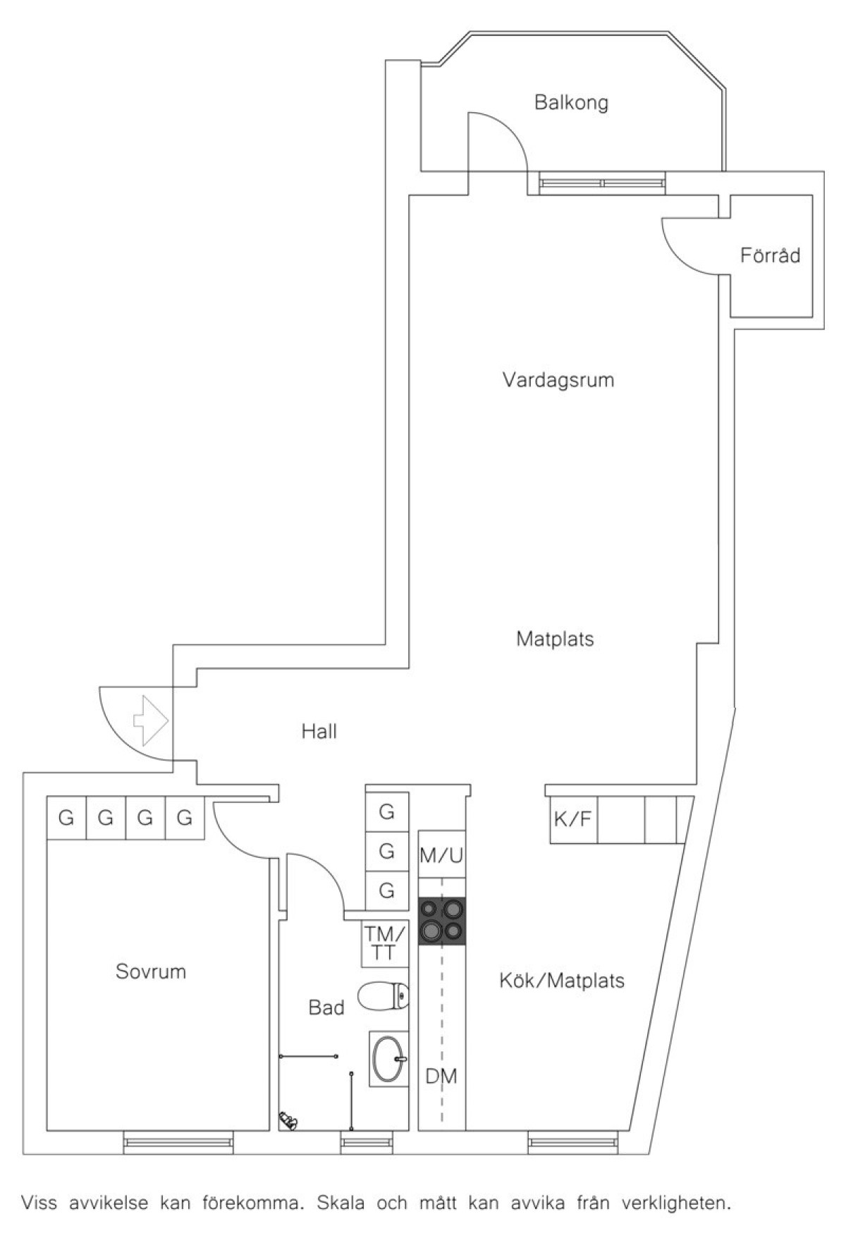
Rumsbeskrivning
HALL
Vitpigmenterad och mattlackad askparkett, infällda spotts, slätspacklade väggar i vitt och förvaring genom garderober.
SOVRUM
Vitpigmenterad och mattlackad askparkett, infällda spotts, bredspacklade väggar i vitt och garderober till förvaring.
BADRUM
Helkaklat med klinker i grått och kakel i vitt. Porslin följer genom vask med förvaring och toalett. Dusch med vikvägg, handukstork samt tvättpelare bestående av tvättmaskin & torktumlare. Golvvärme och vädringsfönster.
VARDAGSRUM
Rymligt med fint ljusinsläpp och plats för både större soffgrupp, arbetshörna och matplats för 6-8 personer. Vitpigmenterad och mattlackad askparkett, bredspacklade väggar, och infällda spotts. Vidare finner vi ett extra förvaringsutrymme samt utgång till balkongen.
BALKONG
Stor möbleringsbar balkong i bästa söderläge. Trevlig utsikt över stadens landmärken och dessutom förfogar föreningen över en mysig innergård. Souterräng bebyggelsen gör dessutom att lägenheten med balkong placeras på högre läge inåt gården i förhållande till gatan.
KÖK
Stort härligt kök med möjlighet till köksö/slaktarbänk i centrum. Vitpigmenterad och mattlackad askparkett, bredspacklade väggar och infällda spotts. Kyl/frys, ugn, induktionshäll, fläkt, micro och diskmaskin.
OMRÅDE
På nedre Slottshöjden/Centrum bor du med det mesta inom gångavstånd, man har grönska och parker ett par minuter bort och lika nära finns city med sitt rika utbud av kultur, shopping och nöjen. För den som pendlar nås Knutpunkten inom 10 minuters gång!

