Rumsbeskrivning
Välkommen till ett välplanerat och hemtrevligt enplansradhus i lugnt och omtyckt område – med ett fantastiskt läge mot Linnéaträdgården och Kungahultsskogen. Här bor du med naturen som närmaste granne och med en harmonisk utsikt som följer årstidernas skiftningar.
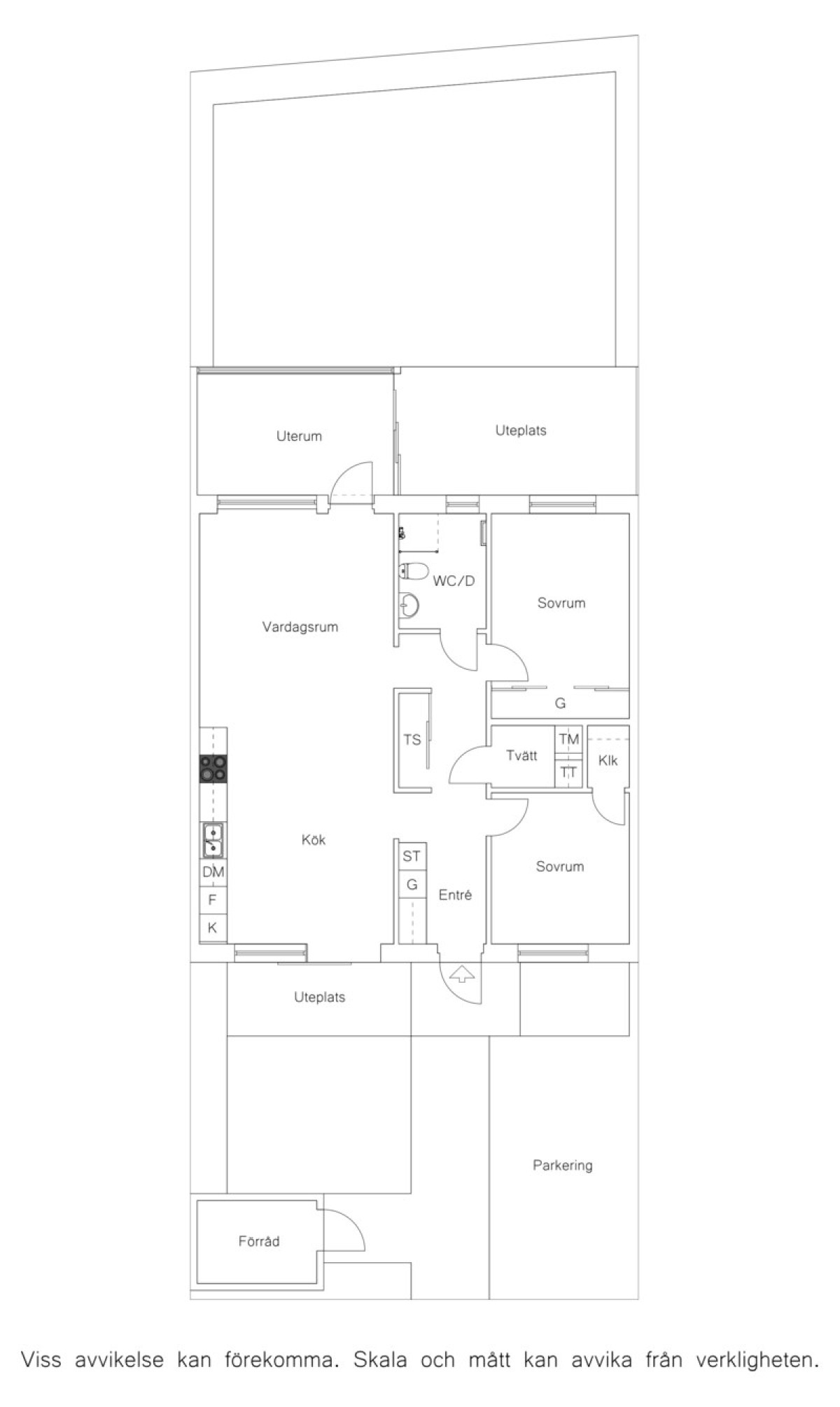
Bostaden erbjuder en genomtänkt planlösning där sociala ytor och privata rum samspelar på ett naturligt sätt. Det rymliga vardagsrummet bjuder in till umgänge och har ett fint ljusinsläpp som skapar en luftig känsla. Härifrån når du det inglasade uterummet – en underbar förlängning av hemmet där du kan njuta av morgonkaffet, sena sommarkvällar eller höstens klara dagar med skogen som fond. Köket är praktiskt utformat med goda arbetsytor och bra förvaring, perfekt för både vardagsmatlagning och trevliga middagar med familj och vänner. Intill finns en naturlig plats för matbord där samtalen kan fortsätta långt efter att middagen är avslutad. Bostaden rymmer två bekväma sovrum i bra storlek samt goda förvaringsmöjligheter. I båda rummen ligger ekparkett. Det stilrena badrummet är funktionellt och lättskött, och planlösningen i ett plan gör hemmet både lättillgängligt och bekvämt för alla åldrar.
Utomhus väntar en lättskött trädgårdstäppa i anslutning till uterummet – en privat och skyddad plats för avkoppling, odling eller lek. Att bo med direkt närhet till skog och promenadstråk ger en livskvalitet utöver det vanliga, samtidigt som du har bekvämt avstånd till service och kommunikationer.
Bra att veta
Uppgifterna i objektsbeskrivningen härrör huvudsakligen från säljaren och kontrolleras av fastighetsmäklaren endast om omständigheterna ger anledning till detta.
För att ta del av de skyldigheter som ligger på dig som köpare så läs igenom pdf´n "Juridisk köparinformation" som finns att klicka ner under fliken "Dokument" och som delges i prospektet du erhåller på visning.
Förbered dig så mycket du kan för att få bästa förutsättningar när eventuell budgivning kommer igång genom att kontakta din bank angående lånelöfte eller så ber jag vår samarbetspartner kontakta dig för ett erbjudande. Äger du ditt boende idag? Behöver du sälja för att kunna köpa nytt? Jag hjälper dig gärna med en värdering och planerar din försäljning på bästa sätt.

