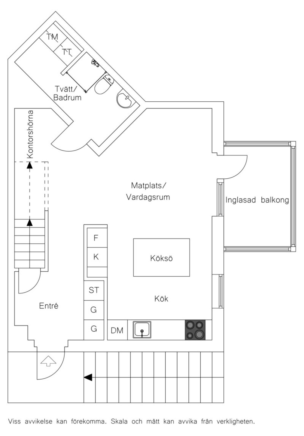
Med privat trappuppgång till entrén, stiger ni in genom dörrarna och möts av bostadens rymliga hall som pryds av ett ljust klinkergolv och vita väggar. God förvaringsmöjlighet för kläder och dylikt erbjuds i garderoben längs med den ena väggen. Vidare finner ni ett stilrent enhetligt ekparkettgolv i övriga delar av bostaden. Från hallen, lite längre fram, når ni den sociala umgänges ytan med kök och vardagsrum. Vardagsrummet/matplatsen har ett härligt ljusinsläpp från fönsterpartierna och altandörren som leder ut till balkongen som ligger i direkt anslutning. Balkongen är ljuvlig och är belägen i soligt västerläge, inglasad och perfekt för dig som önskar att odla något grönt. Kök och matplats ligger i en öppen planlösning med utrymme för större matgrupp, med en praktiskt och fin köksö för den som önskar mer arbetsyta och förvaringsutrymme. Köket erbjuder stilrena vita köksluckor i vitt med matt kakel ovan bänkskivan i laminat. Vitvarorna består av kyl och frys i fullhöjd, inbyggd ugn och mikro, spishäll och integrerad diskmaskin.
Badrummet på första plan är stilrent och helkaklat. Ljusgrått klinkergolv och kaklade väggar i vitt. Badrumsinredningen består av dusch med duschdörrar, kommod, toalett och handdukstork. I badrummets ena del finns tvättavdelning, utrustad med tvättmaskin och torktumlare. En praktisk arbetsbänk ovan som underlättar vid tvättningen samt en smart lösning av tvätt upphängning.
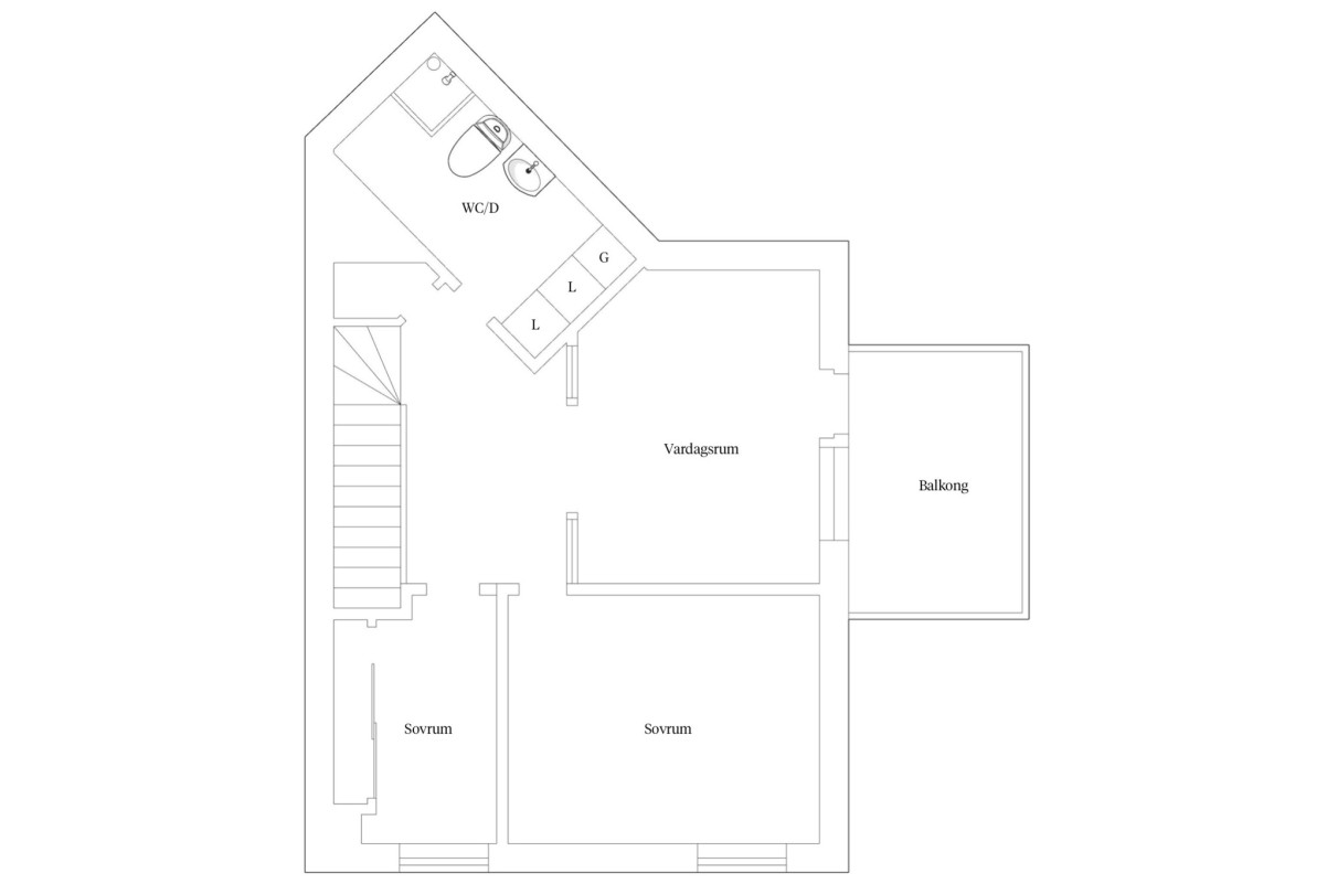
En trappa upp nås den privata delen med tre sovrum. Första rummet med vackert industri glas och balkong i västerläge som idag används som master badrum men kan likaväl används som ett allrum. Sovrum 2 ligger lugnt med ljusinsläpp från två väder streck och erbjuder god förvaringsutrymme i form av garderober längst med ena väggen.
Det mindre sovrummet ligger i fil och är perfekt barnrum men kan även nyttjas som extrarum eller arbetsrum, allt efter önskemål och behov.
Badrummet på andra plan är påkostat och läckert, helkaklat i mörkgrått - otroligt snyggt! Badrumsinredningen består av dusch, toalett och handdukstork.
Entréplan
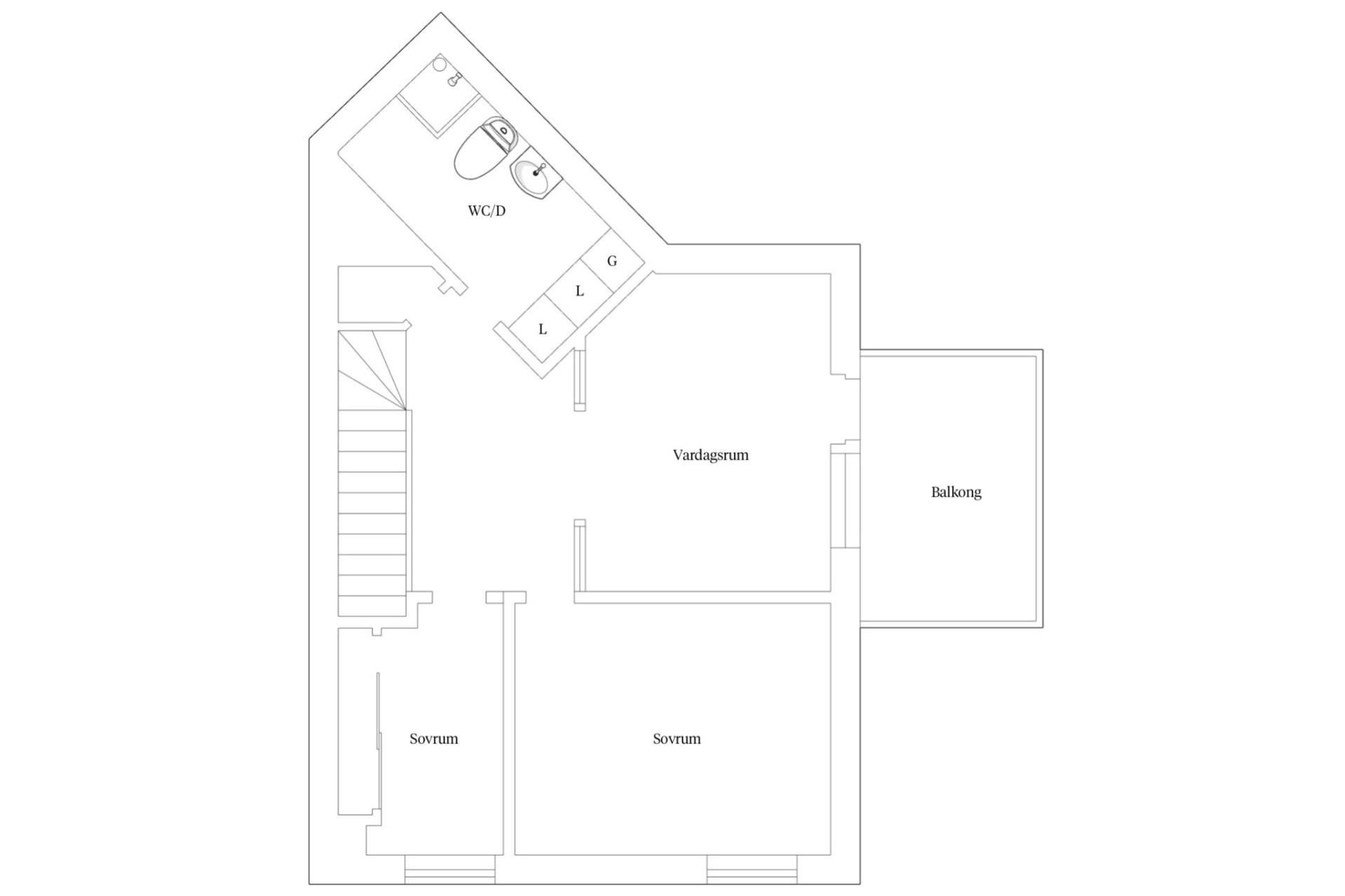
Alternativ planlösning
Kort fakta
Byggnad
Ekonomi
Driftskostnader
Energideklaration
Förening
Separat kösystem tillämpas till garage och p-plats och sker via ekonomisk förvaltare.
Föreningen uppmanar köpare att ställa sig i kö så snart som möjligt.
(Kontrollerat 2025-06-24)
Access till källarvåningen, med utrymmen för förråd och garage delas med grannhuset Pollux. Från Castor är det vacker utsikt över Ringstorps lummiga omgivningar och från många lägenheter också över sundet.

