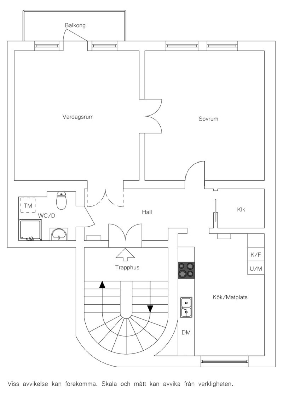
Hall
Ett kliv genom entrén som består av ståtliga pardörrar nås vi av bostadens hall och tambur. Här finns goda möjligheter att hänga av kläderna precis innanför dörren och ytterligare ytor för hallmöblemang. Längre in i tamburen finns även en praktisk klädkammare bakom skjutdörr, utrustat med bland annat hyllplan. Bostadens generösa takhöjd märks av direkt och detaljerna från sekelskiftet speglar väl. På golv ligger ett klassiskt brädgolv i vitbetsad kulör och ljuset kommer naturligt från omkringliggande rum.
Kök
Köket är generöst till sin storlek med gott om förvaring och gedigna arbetsytor. Köksinredningen samspelar väl med detaljerna från sekelskiftet och även här är takhöjden gedigen. Maskinella utrustningen består av kombinerad kyl/frys, diskmaskin, ugn och micro i arbetshöjd, induktionshäll samt köksfläkt. Bänkskivan är av marmor och ett matchande snyggt stänkskydd av kakel täcker väggen bakom. Likt hallen ligger även här ett brädgolv i ljus kulör och det stora fönsterpartiet mot innergården bidrar till kökets härliga, naturliga ljusinsläpp och rymd.
Vardagsrum
I fil med sovrummet och med utgång till balkongen ger vardagsrummet den optimala sällskapsytan. Här rymms den stora soffan, fotöljerna och både hyllor eller tavlor på väggarna runt om. Högt i tak sitter både stuckatur och takrosett. På golv ligger ett ljust brädgolv.
Balkongen är generös sett till en byggnad från sekelskiftet. Här står idag en platsbyggd soffa och solläget är till fördel när du kommer hem från jobbet en försommarkväll. Med sitt läge ned mot vad som kan liknas med "Tågaborgs Torg" ges en väldigt trevlig känsla av stadsliv men utanför stadens absoluta puls.
Sovrum
Sovrummet till bostaden är även det generöst. Här är detaljerna från sekelskiftet extra slående med pardörrar från vardagsrummet, stuckaturer och takrosett i tak samt en vacker kakelugn. Här ryms utan tvivel både dubbelsäng och garderob. På golv ligger ett ljus brädgolv.
Badrum
Det helkaklade badrummet är fräscht med ett mörkt och mindre, marmorerat klinkergolv samt tidlöst vitt kakel på väggar. Inredningen är till sin design tidstrogen och utgörs av spegel, handfat med kommod, duschhörna med regnduschmunstycke samt WC och hyllor. Det finns plats att installera tvättmaskin.

