Rumsbeskrivning
Entrévåning:
Välkomnande hall med stilrent granitskiffergolv som direkt sätter tonen för bostadens genomgående fina standard. Härifrån nås trappan till övre plan. Helkaklad WC/dusch med klinkergolv och fönster för naturligt ljusinsläpp. Smakfullt renoverat -20 och utrustad med wc, handfat och dusch – ett fräscht och modernt badrum i tidlös design. Praktisk klädkammare/förråd erbjuder goda förvaringsmöjligheter.
Ljust och inbjudande vardagsrum med oljat parkettgolv och öppen planlösning mot matrummet, vilket skapar härliga sällskapsytor. För den som önskar finns möjlighet att enkelt dela av matrummet och skapa ett fjärde sovrum. Matrum med elegant granitskiffergolv, behaglig elektrisk golvvärme och infällda spotlights som ger ett stämningsfullt ljus. Härifrån nås bostadens trädäck – en naturlig förlängning av hemmet under årets varmare månader. Smakfullt kök med oljad ekparkett och vita skåpluckor i modern stil. Köket Nordanro, renoverades 2022 med ny skåpsinredning och samtliga vitvaror utbytta samma år. Den maskinella utrustningen i rostfritt utförande består av fullhöjd kyl och frys, spis med glaskeramikhäll, fläkt samt diskmaskin – ett välutrustat och funktionellt kök för både vardag och fest. Tvättstuga med groventré och slitstarkt granitskiffergolv – praktiskt för barnfamiljen eller den trädgårdsintresserade. Här finns tvättmaskin (äldre), torktumlare (2017) och utslagsvask. I utrymmet finns även fjärrvärmeväxlare och ventilationsanläggning.
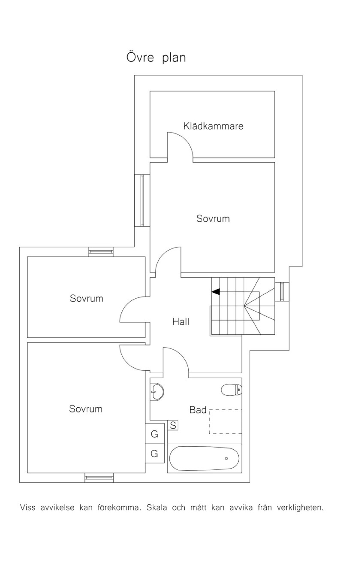
Ovanvåning:
Möblerbar hall med laminatgolv som lämpar sig väl som exempelvis arbetsplats eller extra allrum. Tre välplanerade sovrum, samtliga med laminatgolv och fina ljusinsläpp. Stilrent badrum med klinkergolv och kaklade väggar, renoverat -20. Utrustat med wc, handfat samt ett inbjudande hörnbadkar. Takfönster ger ett behagligt dagsljusinsläpp och förstärker rummets rymd. Här finns dessutom goda förvaringsmöjligheter i två mindre vindsutrymmen.
Area
Arean enligt lägenhetsförteckningen är 110 kvm. Bostadens andelstal och avgift grundar sig på den registrerade ytan om 110 kvm. Utbyggnaden som tidigare ägare själva betalt och uppfört har bekostats av säljarna och värms upp för egen kostnad. Man ansvarar själv för utbyggnadens skötsel/underhåll. Den utbyggda ytan är ej åsatt ett andelstal och är ej heller upplåten.
Bra att veta
Uppgifterna i objektsbeskrivningen härrör huvudsakligen från säljaren och kontrolleras av fastighetsmäklaren endast om omständigheterna ger anledning till detta.
För att ta del av de skyldigheter som ligger på dig som köpare så läs igenom pdf´n "Juridisk köparinformation" som finns att klicka ner under fliken "Dokument". Den delges även i objektsbeskrivningen som ni får på visning.
Förbered dig så mycket du kan för att få bästa förutsättningar när eventuell budgivning kommer igång genom att kontakta din bank angående lånelöfte eller så ber jag vår samarbetspartner kontakta dig för ett erbjudande. Äger du ditt boende idag? Behöver du sälja för att kunna köpa nytt? Jag hjälper dig gärna med en värdering och planerar din försäljning på bästa sätt.

