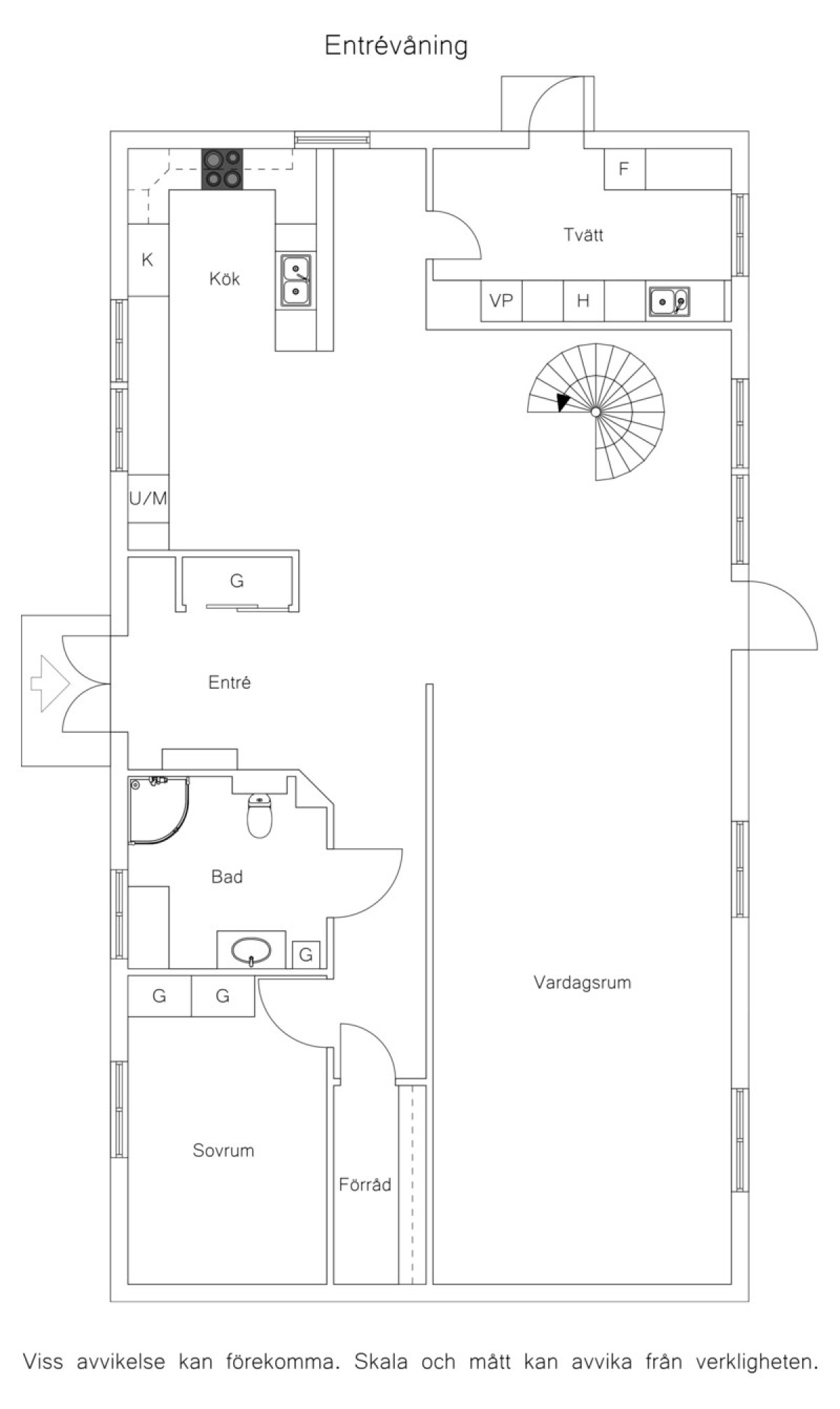
Entréplan
Genomgående för hela entréplanet är det vackra 1-stavsgolvet i en mörkare nyans med behaglig golvvärme.
Hall
Den rymliga, möblerbara hallen välkomnar med vackra profilerade pardörrar, slitstark svart klinker och praktisk skjutgarderob. Här finns även direkt avhängning till vänster och stilrena spotlights i taket som lyser ut rummet.
Vardagsrum
Rakt fram, sett från hallen, möts vi av husets fantastiska vardagsrum. Detta rum badar i ljus och erbjuder generösa ytor för både vardag och sociala sammanhang. Den delvis öppna planlösningen mot köket skapar en härlig rymd och här finns gott om plats för såväl ett stort matsalsbord som ett rymligt sällskapsmöblemang med utrymme kvar för ytterligare möblering om man önskar. Rummet har en fantastisk kontakt med trädgårdens baksida, en grönskande oas som förlänger hemmets sociala ytor under årets varmare dagar.
Kök
Det stilrena vita köket är mycket inbjudande och bjuder på fantastiska arbetsytor. Här har nuvarande ägare förnyat bänkskivan till en svartbetsad massiv träskiva med ny vask, blandare och induktionshäll. Köket är utformat i praktisk U-form och erbjuder gott om förvaring. I samband med bänkskivebytet skapades även en trivsam bardel med plats för tre personer, perfekt för den snabba frukosten eller ett glas och lite försnacks när vännerna kommer över. Utrustningen består av kyl, ugn, mikro, diskmaskin, induktionshäll och fläkt. En naturlig matplats finns dessutom med utrymme för upp till sex personer.
Tvättstuga
Tvättstugan är perfekt placerad mot husets uppfart och har nyligen uppdaterats av nuvarande ägare för att bli ännu mer praktisk och lättanvänd. Här finns utmärkta avhängningsmöjligheter, två rymliga högskåp för förvaring, en generös arbetsbänk samt både tvättmaskin och torktumlare.
Badrum
Nedervåningens badrum renoverades 2014 och är än idag i mycket fint skick. Det är helkaklat i klassiska toner med grå klinker på golv och vita större plattor på väggarna. Badrummet är generöst tilltaget och erbjuder en rymlig duschhörna, vägghängd toalett, kommod med förvaring, spegel samt spotlights i taket. Ett fönster ger både naturligt ljus och möjlighet till effektiv vädring.
Sovrum I
Vidare finner vi ett lagom stort sovrum med förvaring genom två rymliga garderober. Ett perfekt barnrum, kontor eller varför inte till föräldrarna för att få en egen avdelning i huset? Här finner vi behagliga, grönmålade väggar.
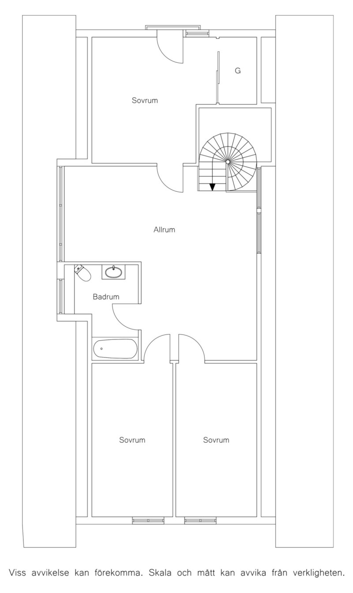
Ovanvåning
Den stilfulla spiraltrappan leder upp till husets generösa ovanvåning, där tre sovrum, ett rymligt allrum och ett badrum breder ut sig. Här finns dessutom flexibla möjligheter att skapa ytterligare sovrum för den som önskar.
Allrum
Det stora allrummet på ovanvåningen erbjuder en fantastiskt känsla. Här finner vi dels en kupa med tre generösa fönster men också två ovanligt stora takfönster av typen som kan öppnas uppåt likt små balkonger. Kupan, som idag fungerar som rummets tv-hörna, kan man med små enkla medel förvandla till ett utmärkt extra sovrum. Det vitlaserade trätaket med synliga, matchande bjälkar ger rummet en varm och otroligt trevlig känsla. Lindgröna väggar samt vitlaserat furugolv.
Sovrum II
Master bedroom med fransk balkong och härligt ljusinsläpp. Längs en hel vägg löper stilrena grå skjutgarderober som ger gott om förvaring. Här finns plats för en dubbelsäng och även en mindre kontorsplats för den som önskar. Vitmålat tak samt gråa väggar
Sovrm III + IIII
Två identiska och mycket trivsamma barnrum, båda med det vackra vitlaserade taket och samma enhetliga golv som övriga rum på våningsplanet. Det ena rummet är målat i en mjuk grön ton och det andra i en varm terrakottaliknande nyans.
Badrum
Ett stilrent, helkaklat badrum från 2017, inrett med ljusgrå klinker på golv samt större grå 60x60-plattor som varvas med större vita väggplattor. Här finner vi bekvämligheter som badkar, toalett, kommod med förvaring, en stor spegel samt handdukstork. Ett mycket fint och välplanerat badrum.

