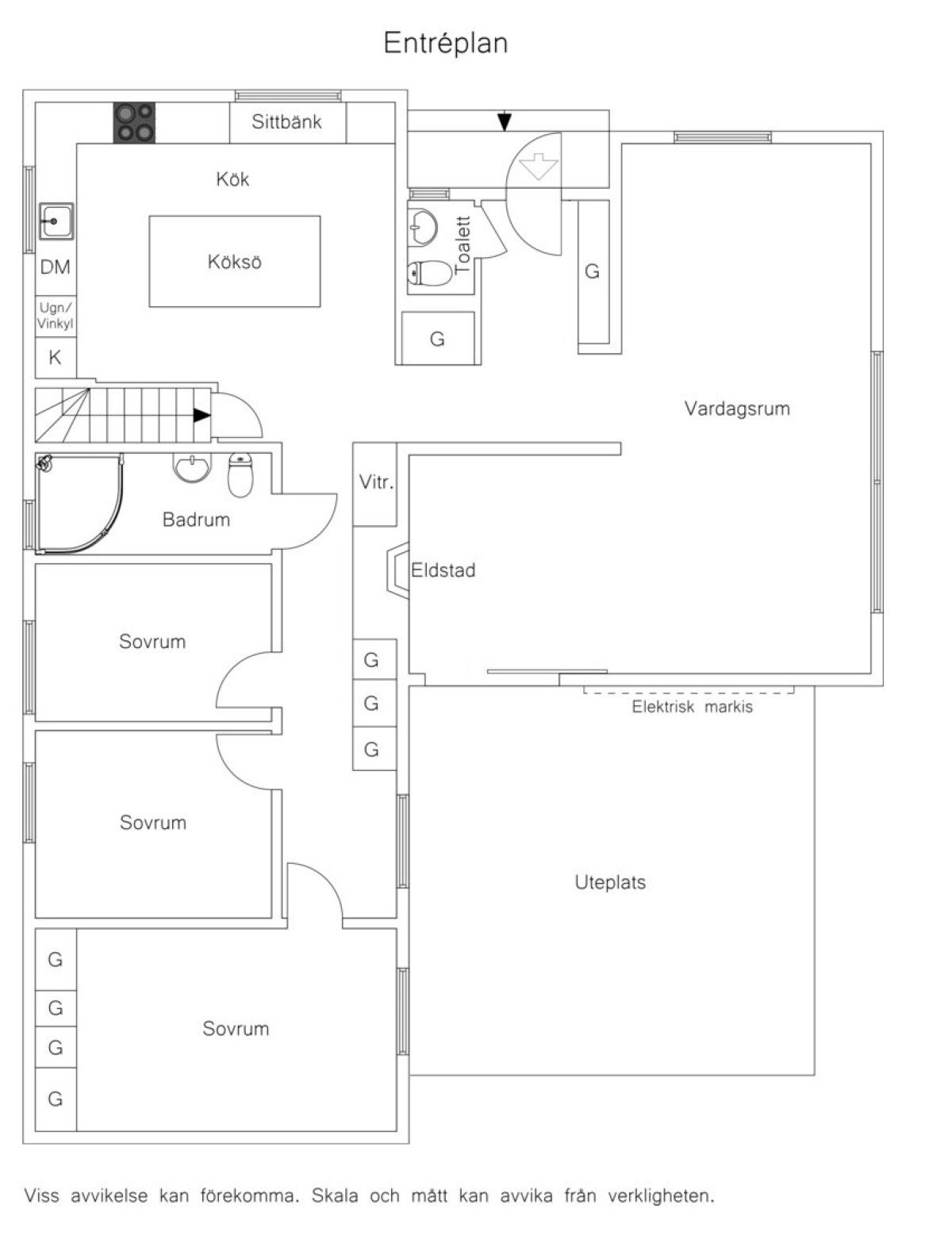
Rumsbeskrivning
ENTRÉ
Ölandssten på golvet och förvaring via garderober med skjutdörrar.
GÄSTTOALETT
Kaklade väggar och infälld spegel. Toalett och vask med förvaring under.
VARDAGSRUM & MATSAL
Underbart rum med fönster i tre väderstreck. Genomgående enstavsgolv (nylagt 2019) och vitmålade väggar. Här ryms större matbord, soffgrupp samt ytterligare sittgrupp. Braskamin i tegelväggen förhöjer mysfaktorn samt man har en underbar kontakt med terrassen via ett glasat skjutparti.
KÖK
Exklusivt kök från Ballingslöv totalrenoverat 2021. Det är faktiskt så att Ballingslöv har med köket i sin marknadsföring på sin hemsida. Att läsa från Ballingslövs hemsida: Ett svart kök i massivt trä med en härlig köksö och tåliga bänkskivor i Dekton Keon. Här finns gott om arbets- och bänkytor och den svarta luckan känns modern mot den grå stenbänkskivan och de vita väggarna. Det snygga vitrinskåpet från vår Shaker serie ger värme åt köket med sin insida i vitpigmenterat trä. DISKBÄNK: KBX 210-55, Franke. VITVAROR: Kyl och Frys (Electrolux), induktionshäll (70 cm bred Electrolux) Ugn med ångfunktion (Electrolux), Kombi ugn/mikro (Electrolux), Vinkyl (Electrolux) och Fläkt Röros.
BADRUM
Helkaklat och renoverat 2013 med grått klinkergolv och vita kaklade väggar. Toalett, dubbelvask med förvaring, spegel med belysning samt enormt badkar.
SOVRUM ETT
längst in ligger det största sovrummet på entréplan. Parkettgolv, vita väggar samt en hel vägg utgör förvaring.
SOVRUM TVÅ & TRE
Två ungefär likastora sovrum båda med parkettgolv och vitmålade väggar.
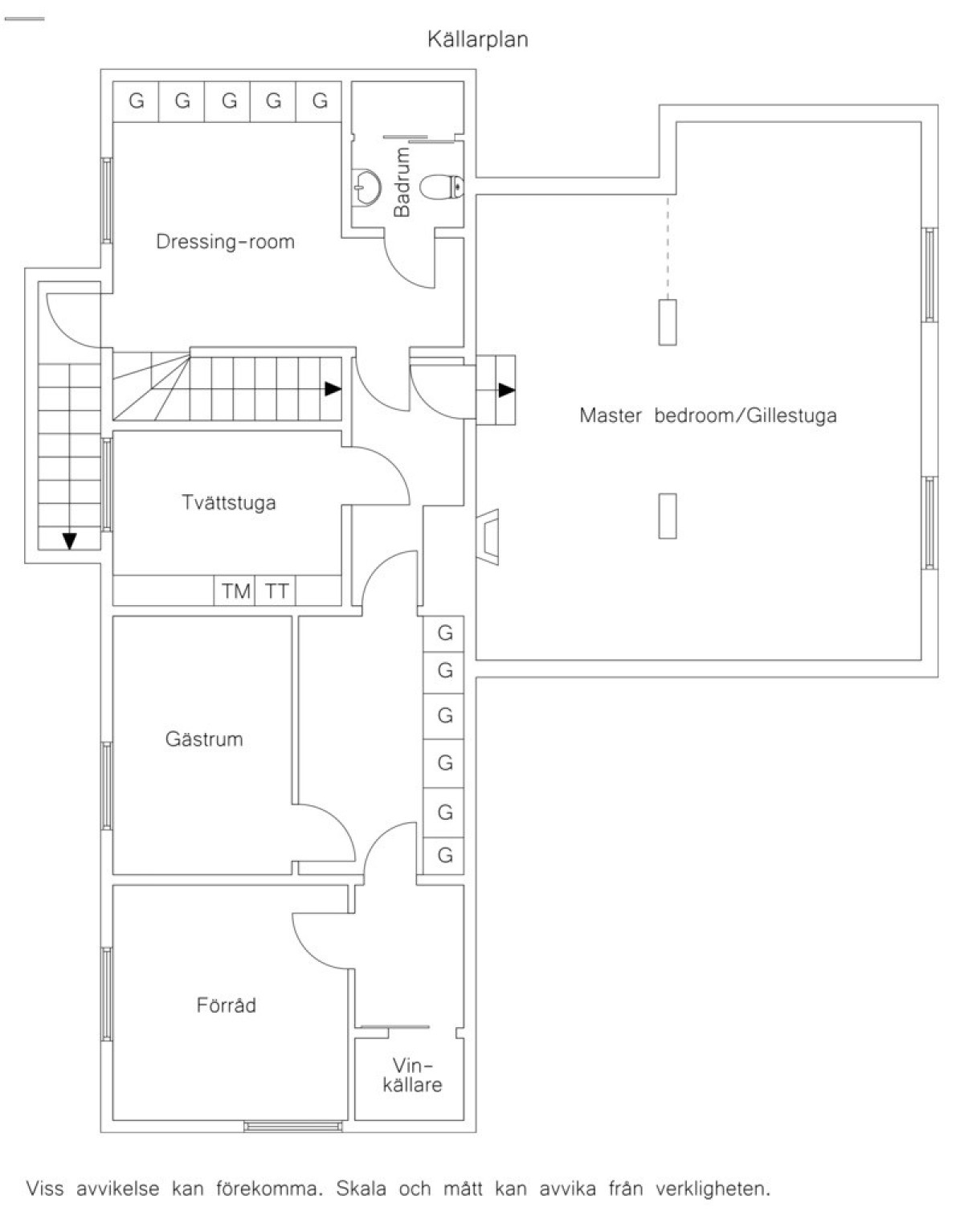
EN TRAPPA NER
DRESSING ROOM/ENTRÉ
Här finns ytterligare en ingång med helt ny dörr med ljusinsläpp. Gott om garderober, klinkergolv och vita putsade väggar.
BADRUM
Renoverat 2013 med ljust klinkergolv och vita kaklade väggar. Utrustat med dusch, toalett samt vask med förvaring.
MASTER BEDROOM
Två trappsteg ner ligger den stora och härliga gillestugan på närmre 45 kvm. Här ges plats åt både pingis-/biljardbord och soffhörna. Braskamin förhöjer mysfaktorn och de extra utgrävda fönsterna ger ett bra ljusinsläpp.
TVÄTTSTUGA
En rymlig och bra tvättstuga med både tvättmaskin och torktumlare. Arbetsbänk och vask samt förvaring. Gott om plats för att hänga upp tvätten.
Klinkergolv och putsade väggar.
GÄSTRUM
Rymmer dubbelsäng. Klinkergolv och putsade väggar.
VINKÄLLARE
Längst in, bakom glaspartier, förvarar man vinerna.
FÖRRÅD
Stort förråd finns också i källaren.

