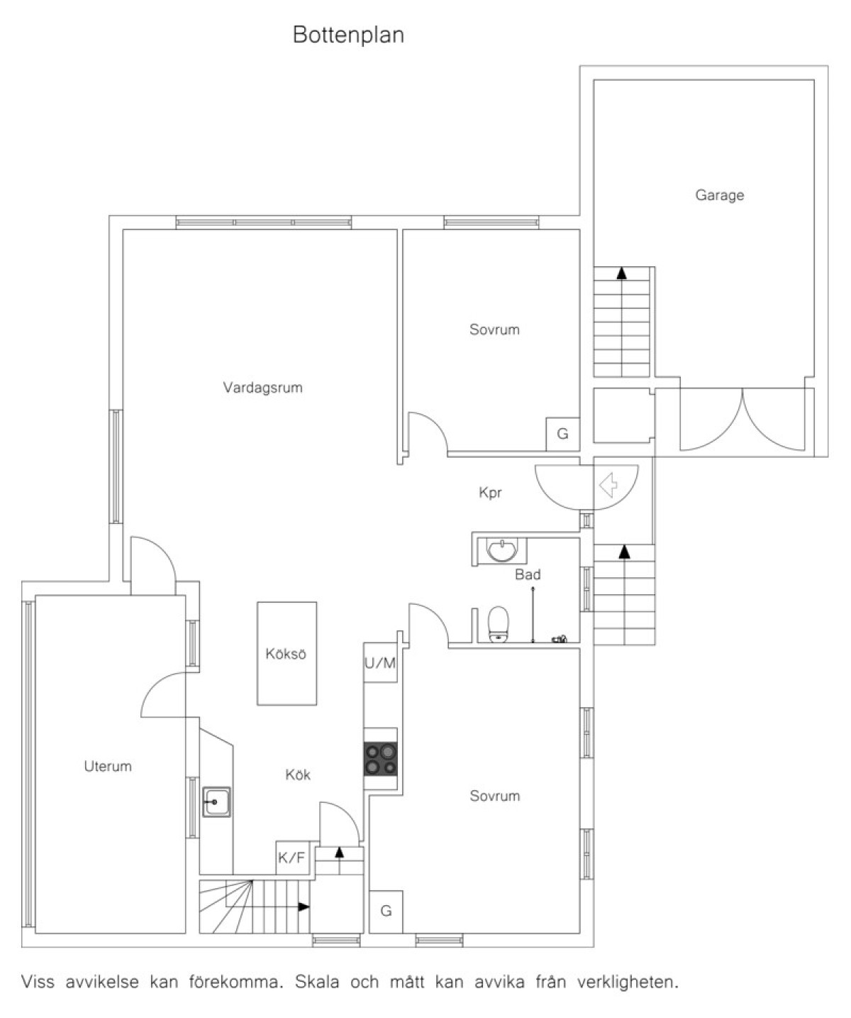
Hall
Bra hall med goda avhängningsmöjligheter direkt till vänster. Nylagd parkett på golv samt vitmålade väggar.
Vardagsrum
Vardagsrummet bjuder på stora, inbjudande fönster som fyller rummet med ljus och skapar en härlig kontakt med trädgården. En fin detalj är det bevarade kulturfönstret som skapar en fin känsla till rummet. De generösa sällskapsytorna gör det enkelt att umgås både som familj och med vänner. Den öppna planlösningen mot köket förstärker känslan av rymd och trivsel i hela hemmet. Originalparkett på golv samt vitmålade väggar som möts av en grön fondvägg.
Kök
Köket består av beige och grå köksluckor kompletterat med en Dekton och laminatbänkskiva samt ett nylagt golv som ger ett elegant helhetsintryck. Den centralt placerade köksön med fyra sittplatser bjuder in till sociala stunder, oavsett om det gäller vardagens frukostar eller långa middagar med vänner. Maskinparken består av kombinerad kyl/frys, ugn, induktionshäll, mikro, diskmaskin och fläkt. Från köket har du dessutom fin kontakt med det inglasade uterummet och en öppen planlösning mot vardagsrummet.
Badrum
Nyrenoverat badrum i tidlösa nyanser med grått klinker på golv och beige större plattor på vägg. Här finns en rymlig dusch, toalett, stilren kommod samt fönster för extra ljus och vädring.
Sovrum 1
Stort och luftigt sovrum med fönster mot bostadens framsida och uppfart. Här finns gott om plats för dubbelsäng och möblering efter behov. Nylagd parkett på golv samt vitmålade väggar.
Sovrum 2
Ett rymligt sovrum med stort fönster mot bostadens trädgårdsbaksida. Generösa ytor ger plats för både säng, förvaring och en mysig läshörna. Nylagd parkett på golv samt vitmålade väggar som möts av en beige fondvägg.
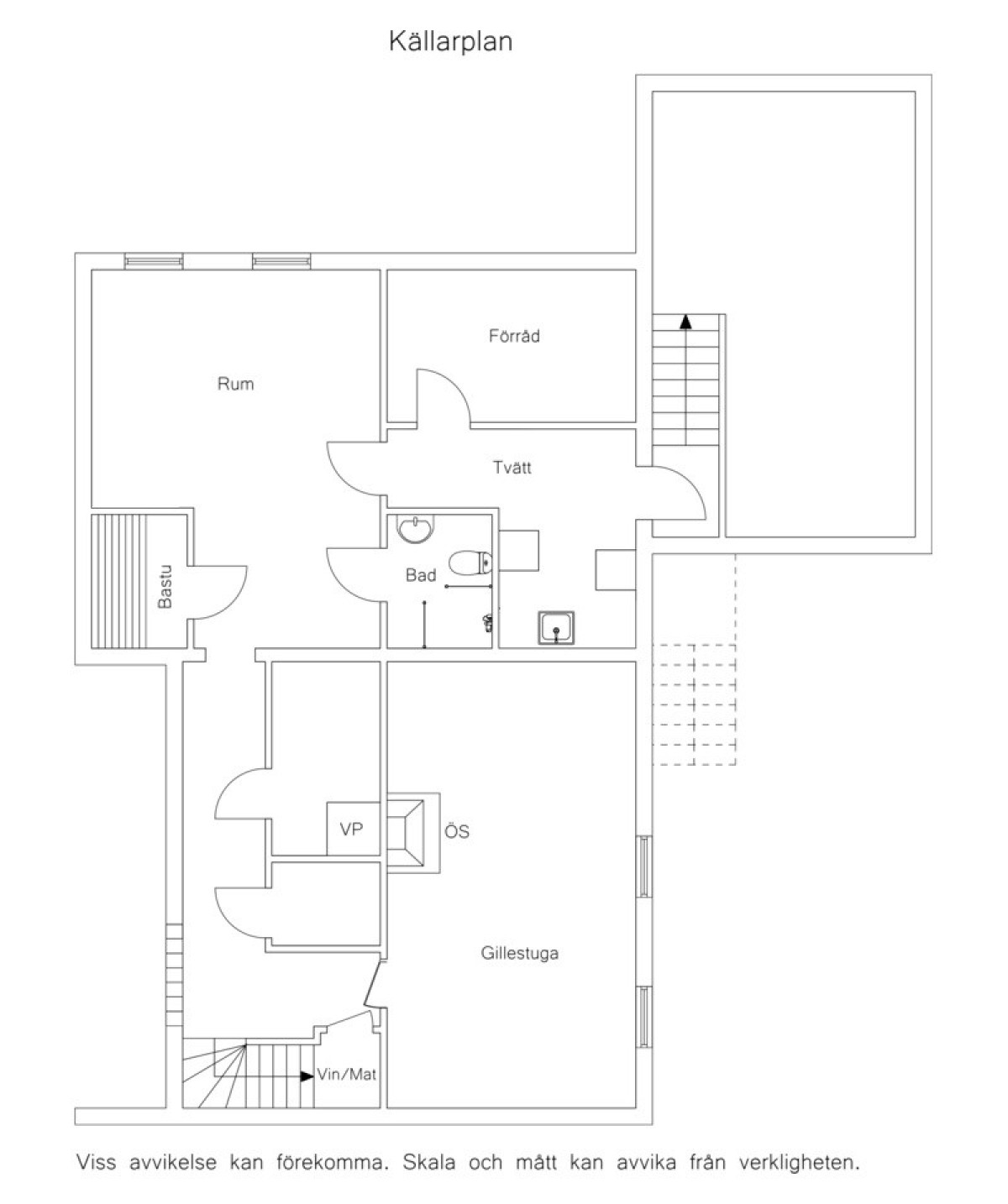
Källare
Källaren erbjuder generösa ytor och många möjligheter för familjen. Här finns en stor gillestuga med plats för mysiga filmkvällar invid den värmare braskaminen, ett rymligt rum som enkelt kan användas som sovrum eller allrum, samt ett uppfräschat badrum. Dessutom finner vi en praktisk tvättavdelning, förråd och en vin-/matkällare.

