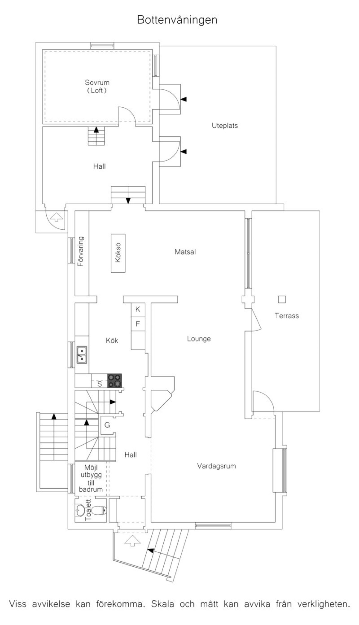
Original entré
Några trappsteg upp nås den markerade entrén och man kliver in i en hall med grått klinkergolv och plats för avhängning. Nuvarande ägare använder denna entrén till gäster. Blyinfattat fönster.
Gästtolett
Läcker 50-tals toalett med svart kakel. Toalett, handfat. För de som vill kan man bygga ut toaletten och ta yta i hallen (integrera det blyinfattade fönstret) om man är i behov av ytterligare ett badrum.
Vardagsrum, lounge och matsal
Helt underbara sällskapsytor med fantastiskt ljusinsläpp och vacker fiskbensparkett som flyter genom rummen. Här ges plats till soffgrupp, loungemöblemang samt ett rejält matsalsbord för lätt 12-14 personer. Intill matsalen finns extra förvaring. Man har en fin kontakt med verandan via pardörrar. Braskamin.
Kök
Renoverades 2016 med vita skåpsluckor, ljus bänkskiva och rostfritt stänkskydd. Ett arbetskök, perfekt när gästerna sitter i matsalen så slipper dom se all disk med mera. Hel kyl och frys, diskmaskin, ugn, häll, fläkt och micro. Klinkergolv.
Utbyggnad/entré/sovrum I
Några trappsteg ner finner vi utbyggnaden som tillkom 2003. Den harmoniserar väl med huset. Här är en rymlig hall med förvaring samt en riktigt mäktig känsla då det är öppet till nock. Ett sovrum med loft ovanpå samt utgångar till trädäcket. Denna avdelning är perfekt för tonårsbarn, gästrum eller hemmakontor/verksamhet. Klinkergolv.
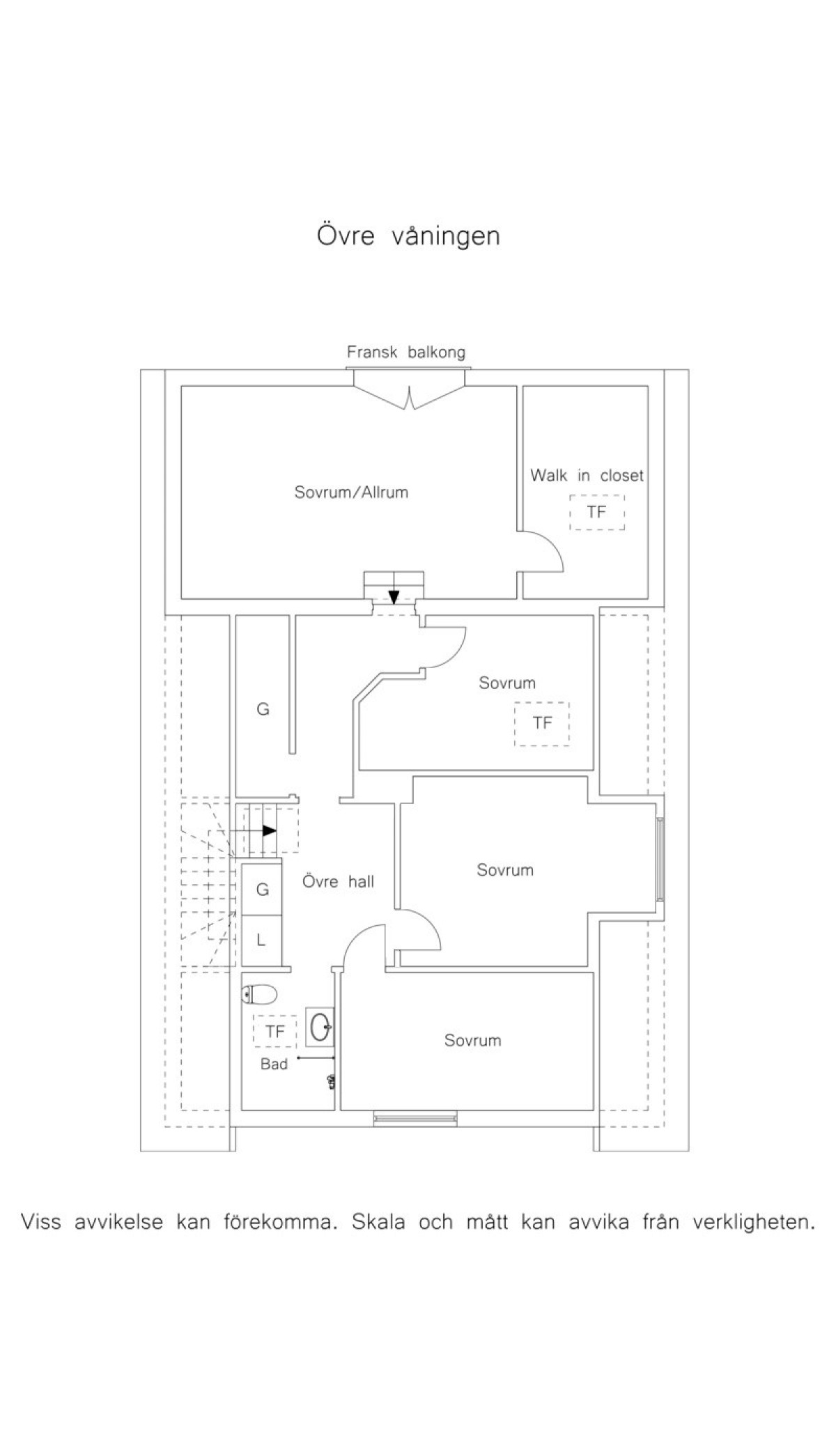
Välkomna upp
Via en snygg trappa nås ovanvåningens hall. Här finns väldigt gott om förvaring.
Badrum
Otroligt snyggt renoverat badrum (2025) med toalett, kommod, spegel samt dusch med glsvägg.
Sovrum II
Bra storlek att rymma dubbelsäng och skrivbord. Parkettgolv.
Sovrum III
Ett härligt rum med kupa, även detta stort nog för dubbelsäng och extra möblemang.
Sovrum IIII
Bostadens fjärde rum nyttjas idag som dressing room men är ett perfekt sovrum. En "lönngång" finns mellan sovrum III och detta rum, hur kul för barnen?
Sovrum V eller Sällskapsrum
Det sista sovrummet, beläget två trappsteg ner, tillkom -96 när man byggde på en tidigare veranda. Ett magnifikt rum med fransk balkong, öppet till nock samt synliga bjälkar. Man har byggt upp en vägg för att göra en walk-in-closet men denna kan tas ner om man vill ha ett enda stort rum. Här är rejäla ytor!
En trappa ner
Källaren nås både från hallen och utifrån. En genomgående fräsch källare.
Gillestuga
Väldigt härligt rum med bra ljusinsläpp. Klinkergolv.
Tvättstuga
Arbetsbänk med vask, tvättmaskin och torktumlare. Duschkabin. Klinkergolv.
Hobbyrum
Ett av rummen här nere nyttjas som gym. Klinkergolv.
Förvaring + matkällare
Här finns ytterligare två rum, ett som är en klassisk matkällare samt ett som nyttjas som förvaring.

