Hall:
Välkomnande hall med plats för avhängning. Lite längre in finns även garderober som ger plats för era kläder och skor. I hallen når ni även en praktisk gäst-wc, sovrum 2, vardagsrum samt köket. På golvet ligger ett slipat och oljat körsbärsparkett och väggarna är klädda med en tapet.
Vardagsrum:
Ett rymligt vardagsrum med stora, härliga fönsterpartier som släpper in rikligt med ljus. Här får ni plats med en generös soffgrupp, ett större matbord för 12 personer samt annat önskat möblemang. Den öppna spisen (ej eldningsbar i dagsläget, behöver besiktigas) är en fin detalj i rummet. Från vardagsrummet når ni uterummet, sovrum 3 och hall. På golvet ligger ett slipat och oljat körsbärsparkett och väggarna är vita. Mörka takbjälkar som skapar en varm och inbjudande känsla.
Kök:
Rymligt kök (IKEA) som erbjuder bra arbetsyta och förvaringsmöjligheter i de vita skåpen och lådorna. Köket är utrustat med kyl & frys, integrerad diskmaskin, spishäll, spisfläkt och ugn. Vita kakelplattor som stänkskydd och mörk träbänkskiva. Stora fönsterpartier som bidrar med ett härligt ljusinsläpp. Även här finns mörka takbjälkar som ger en varm och inbjudande känsla. Matplats för upp till 6 personer och mer plats erbjuds i allrummet som ligger öppet mot köket, perfekt vid större fester eller middagar. Vid matplatsen i köket finns även en charmig öppen spis (eldningsbar) som höjer mysfaktorn rejält under mörka, kalla höst- och vinterdagar. Från köket når ni badrummet, tvättstugan/groventrén, allrummet och hallen. Vita väggar och på golvet ligger ett slipat och oljat körsbärsparkett.
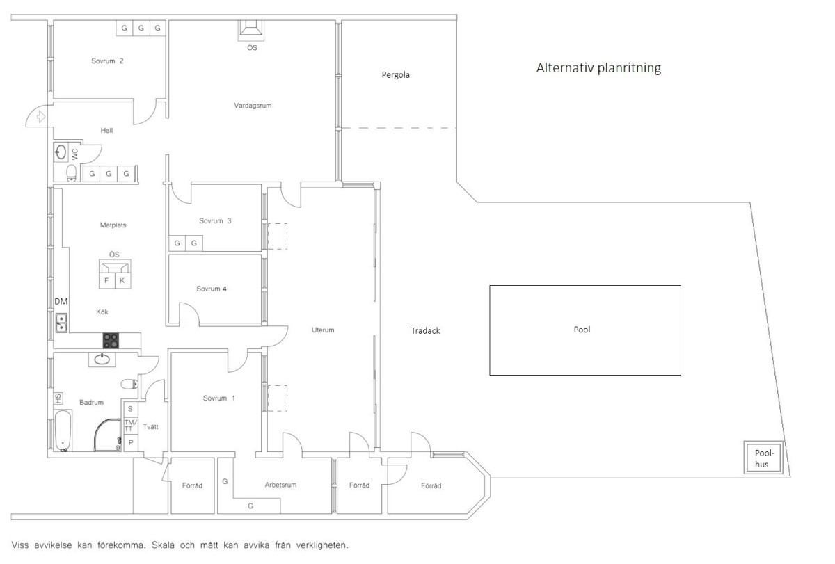
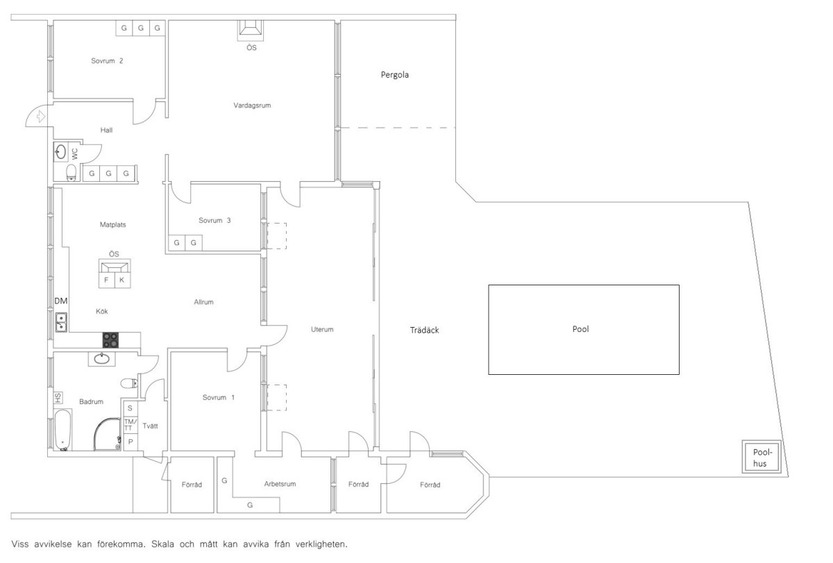
Allrum:
Ett allrum som ligger i direkt anslutning till köket vilket bidrar till extra plats för matbord eller en soffhörna där barnen kan umgås medan de vuxna lagar middag. I allrummet får ni plats med en soffa och/eller annat önskat möblemang. Allrummet kan även göras om till ett rum om behovet finns (se alternativ planritning). Från allrummet nås köket, sovrum 1 och det generösa uterummet. Vita väggar samt en fondtapet och på golvet ligger ett slipat och oljat körsbärsparkett.
Sovrum 1:
Ett stort sovrum med plats för dubbelsäng och annat önskat möblemang. Fönsterpartier mot trädgården. Från sovrummet når ni arbetsrummet samt allrummet. Slipbart trägolv och vita väggar varvat med en fondtapet.
Arbetsrum:
Ett rum som idag används som ett kontor/walk in closet och nås från Sovrum 1. Garderober som erbjuder plats för kläder och skor. Här har ni också direkt utgång till uterummet. På golvet ligger ett trägolv och väggarna är vita. Färgade fönster på ena väggen.
Sovrum 2:
Sovrum med plats för säng och annat önskat möblemang. Garderober på ena sidan som ger plats till kläder och skor. På golvet ligger ett mörkt klickgolv och väggarna är ljusa samt en blommig fondtapet. Frånsovrum 2 nås hallen.
Sovrum 3:
Sovrum med plats för säng och annat önskat möblemang. Garderober som erbjuder plats för kläder. Fönsterpartier mot uterummet. På golvet ligger ett mörkt slipat och oljat körsbärsparkett och väggarna är vita.
Badrum:
Ett stort, helkaklat badrum utrustat med duschkabin, badkar, wc, vask med kommod undertill, spegelskåp samt högsskåp där ni får plats med alla era hygienartiklar. Fönsterna släpper in rikligt med ljus. Badrummet uppdaterades för några år sedan med remaljerade kakelväggar och ett klinkergolv som målats i en stilren grå nyans. Behaglig golvvärme (vattenburen)
Tvättstuga/Groventré:
En mindre men praktisk groventré/tvättstuga som är utrustad med tvättmaskin och torktumlare (-20) och en garderob som erbjuder förvaringsmöjligheter. Här står även bostadens elpanna. På golvet ligger ett vitt klinker och väggarna är vita.
Gäst-wc:
En stilren helkaklad gäst-wc utrustad med vask och kommod undertill, spegel och wc.
Uterum:
Ett uppskattat och ljust uterum på hela 40 kvm med stora skjutbara glasdörrar som tar er ut till den härliga trädgården med pool och pergola, i soligt söderläge. Uterummet blir en förlängning av huset och nås både från vardagsrummet, allrummet, arbetsrummet samt förrådet. Här får ni plats med loungemöbler och ett generöst matbord. På golvet ligger ett modernt ljusgrått klinker (-24) med underliggande behaglig golvvärme (elslinga)
Utemiljö:
Generös, lättskött trädgård i soligt söderläge med både trädäck och gräsmatta. Poolen blir lätt en favorit bland familjemedlemmarna och i ena hörnan väntar en pergola som bjuder in till härligt häng under varma sommardagar med vänner och familj. I trädgården har ni även tillgång till ett stort förråd där ni får plats med alla era trädgårdsverktyg och maskiner. På ena kortsidan av huset finner ni ytterligare ett förråd.

