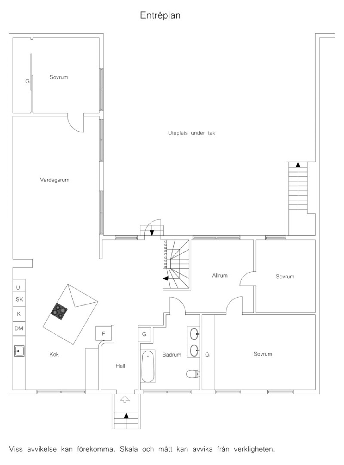
Hall
Långsmal hall med avhängning direkt till vänster eller genom en garderob längre ned i hallen. På golvet vilar en mörkare 1-stavsparkett som även är genomgående i de stora sociala ytorna.
Kök
Ett stort och mycket karaktärsfullt kök. Här möts du av körsbärsröda köksluckor i hög kvalitet, gedigna granitbänkskivor och ett vackert 1-stavsgolv. Det genomtänkta snickeriet kompletteras av detaljer som infällda skärbrädor och praktiska sockellådor som utnyttjar varje centimeter på bästa sätt. Tack vare den höga materialkvaliteten finns säkerligen goda möjligheter att enkelt ge köket ett nytt uttryck genom att låta omlackera luckorna vid behov. Den snedställda köksön blir ett tydligt blickfång och rymmer två barstolar för social matlagning. Här finns även en mindre matplats för fyra personer invid kökets två stora fönster. Maskinparken består av spishäll, ugn, fläkt, diskmaskin samt en mindre kyl och en stor frys.
Vardagsrum
Ett stort och inbjudande vardagsrum med flera stora fönsterpartier mot bostadens trädgårdsbaksida. Här finns flera möbleringsalternativ som rymmer den stora familjesoffan men också det stora matsalsbordet utan problem.
Sovrum
Stort och härligt sovrum med generöst fönster mot trädgårdens baksida. Här ryms enkelt en dubbelsäng och övrigt möblemang. Längs ena väggen finns en enorm skjutgarderob som rymmer allt och lite till. Vackert, mörk 1-stavsparkett möter ljusgrå väggar och skapar en stilren helhet.
Badrum
Badrummet har ett tidlöst uttryck med klassisk grå klinker på golv samt större vita kakelplattor på väggarna. Rummet är generöst till sin storlek och erbjuder dubbelkommod, spegelskåp, badkar, toalett och handdukstork. Två fönster för bra ljusinsläpp samt vädringsmöjlighet.
Sovrum II
Sovrum i mindre storlek som fungerar alldeles utmärkt till barnrum, kontor eller gästrum. Ekparkett på golv samt gråa väggar.
Sovrum III
Ett riktigt stort sovrum som en gång i tiden var två. Rummet vetter mot husets framsida och erbjuder plats för flera stora möbler. Längs med ena väggen finner vi även här en enorm garderobslösning.
Källarplan
Källaren erbjuder ett helt extra våningsplan med fina ytor. Här nere finns ett stort allrum med ekparkett samt ett intilliggande sovrum med samma golv och god förvaring i form av flera garderober. Vidare finns även ett mindre gästrum eller kontor med ljusa väggar och parkettgolv.
Duschutrymmet är klätt i blåmönstrad våtrumstapet och rymmer både en generös bastu och ett separat torkrum. Intill ligger en fräsch toalett med klinkergolv. Tvättstugan är funktionell med dubbla tvättmaskiner, torktumlare och vask, även om den kan må bra av viss uppfräschning. Här finns också ett praktiskt pannrum samt ett mycket stort hobbyrum/verkstad med egen ingång från trädgårdens baksida.

