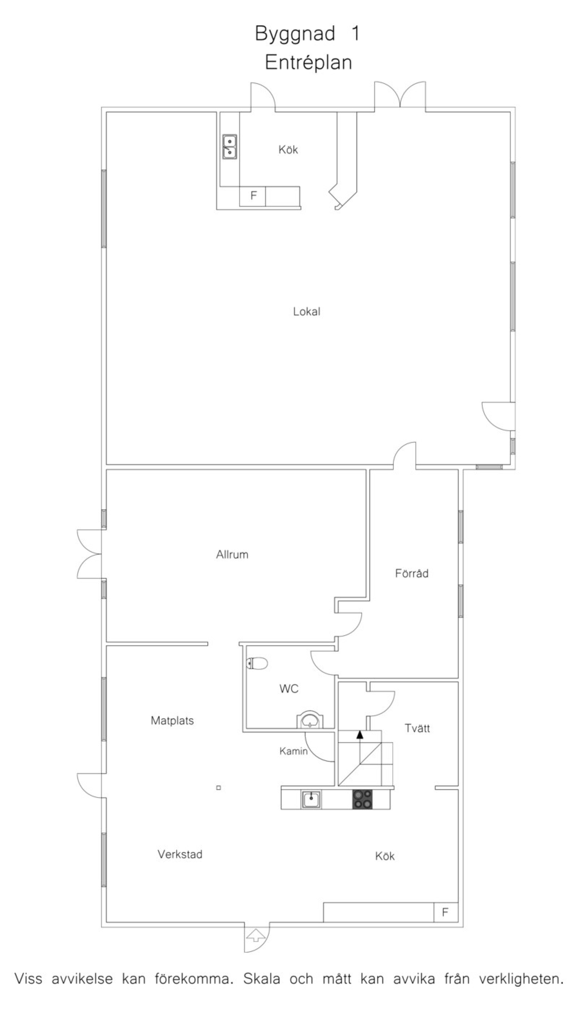
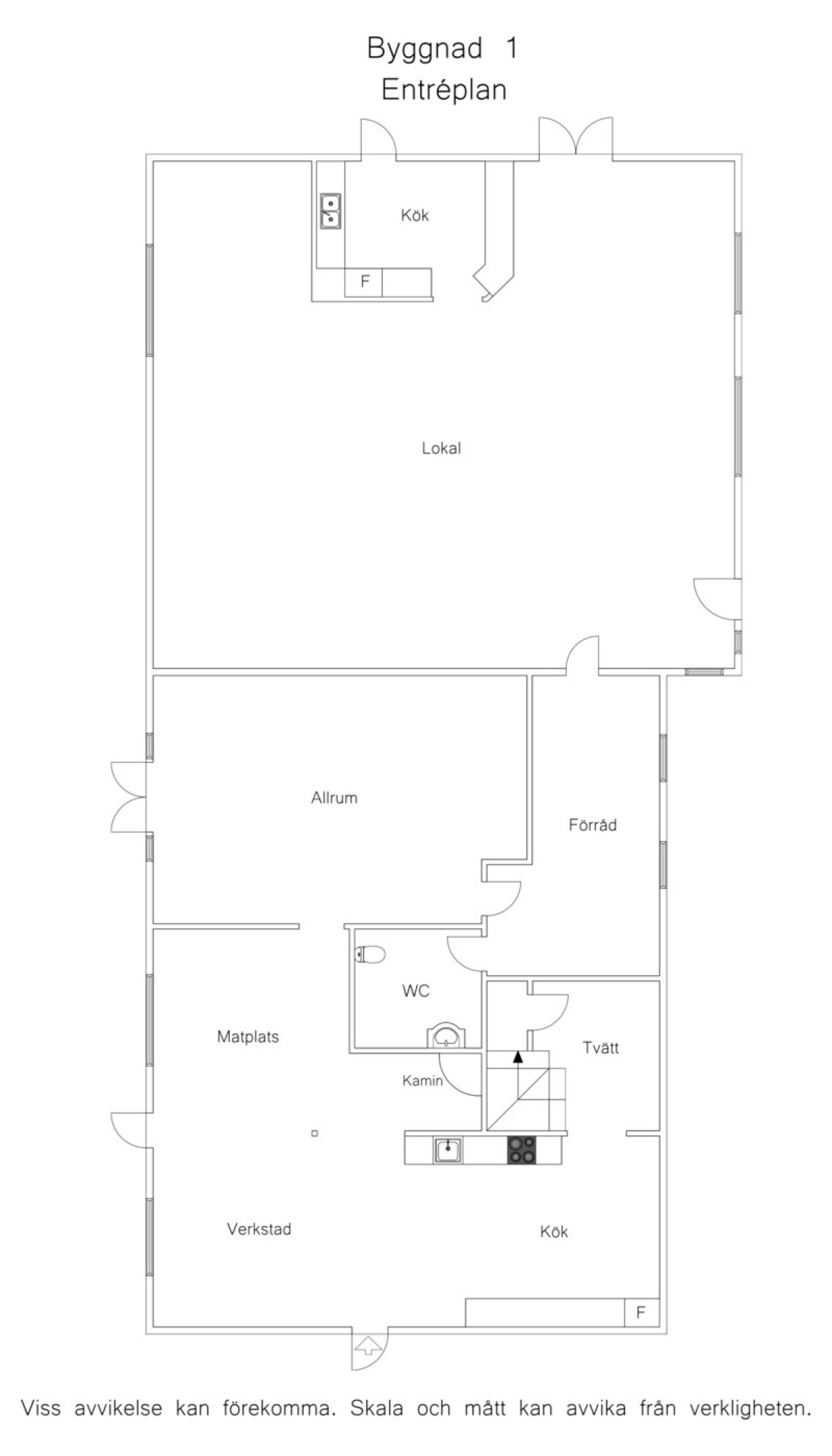
Verksamhetlokalen
Huvudhuset rymmer en verksamhetslokal på runt 100 m² med ett litet kök och pentry samt en flexibel yta som passar perfekt för en rad olika verksamheter – loppis, kontor, studio eller showroom. Möjligheterna är många. Framför byggnaden finns bra parkering och ett fint skyltläge som ger verksamheten god synlighet.
Bostadsdel 1
I direkt anslutning till lokalen finns även en bostadsdel som renoverats på ett enkelt och charmigt vis, idealisk för uthyrning. Oavsett om man tänker sig generations boende, Airbnb eller längre uthyrningar fungerar den utmärkt. På bottenplan finns kök med matplats, allrum och toalett, medan ovanplan erbjuder ett rymligt sovrum och ett enklare badrum. Genomgående har bostaden en fin lantlig känsla med utsikt mot de intilliggande fälten.
Bostadsdel 2
Denna byggnad om ca 80 kvm erbjuder ett funktionellt boende med stor potential. På entréplan möts du av ett kök som leder vidare till ett generöst allrum och matsal i öppen känsla. Gott ljusflöde och ytor som rymmer både matplats och vardagsrumsdel. Klinkergolv bidrar till en både stilren och lättskött helhet. Vidare finns badrum med separat toalett. En trappa upp väntar en vacker vindsvåning med charmfull karaktär och fina vyer genom fönstren. Här finns ett större rum som med fördel kan användas som sovrum eller allrum, samt ytterligare ett badrum. Med rätt omsorg och kärlek finns här alla möjligheter att skapa ett riktigt fint och praktiskt boende.

