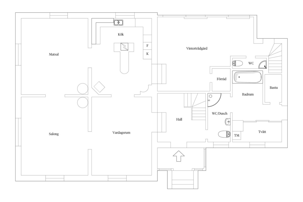
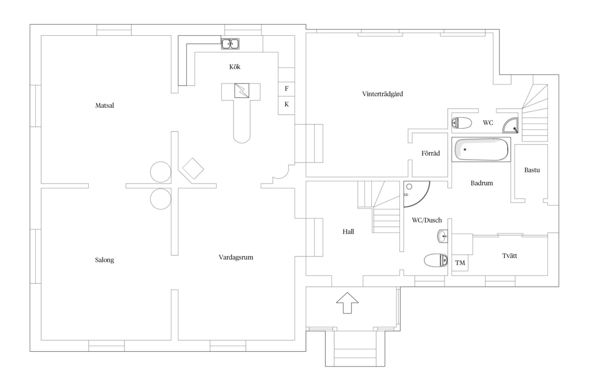
Genom den vackra entrén kommer man in i verandan där det finns en platsbyggd sittbänk och avhängningsmöjligheter. Mer förvaring i form av garderober finns snyggt gömt under trappan. Värmegolv med klinkers och väggarna är vitmålade.
Från hallen, direkt till höger har ni ett badrum som är helkaklat i blåa och vita toner med behaglig belysning av infällda spotlights i taket. Här finns handfat, toalett, badrumsskåp, dusch, bubbel badkar och en bastu (aggregatet är av men finns att sätta dit). Ni finner även en tvättstuga här med tvättmaskin (Bosch 2023) och torktumlare (Whirlpool 2011).
Från hallen till vänster finner ni salongen, ett stort rum där era fantasier kan flöda och välja fritt vad det ska användas till. Högt i tak, fönster som vetter mot framsidan och vackra spegeldörrar som öppnar upp mot både köket och vardagsrummet på ett storslaget sätt. Massivt trä i ek vilar på golvet och väggarna är målade i ljus kulör.
Vardagsrummet finner ni ett steg längre in genom spegeldörrarna, även här är det högt i tak och vackert ljusinsläpp från två väderstreck. Golvet består av holländsk mönsterparkett och väggarna är ljust tapetserade. Rummet ger möjlighet till en stor soffgrupp med tillhörande möbler, eller varför inte ett vackert piano att sitta vid samtidigt som elden sprakar i den ståtliga kakelugnen som fungerar!
Matsalen ligger i fil, och bjuder in till små som stora middagar - perfekt att duka upp långbord! Matsalen ligger praktiskt i anslutning till köket som ni når genom det stora vackra spegeldörrarna. Den praktfulla kakelugn (ej fungerande) besmyckar detta rum på förtjusande sätt. Trägolv och väggarna är ljust tapetserade.
Köket är smakfullt inrett i klassiskt krämvitt med stilfull touch av luckor i vitrindörrar med spöjsade glas och lådor med ram, helt i enlighet med husets karaktär. Köket är hjärtat i huset och det känns lyxigt! Köket är från Ballingslöv, bänkskivan består av mörk granit med kakel som stänkskydd ovan. Utrustat med induktionshäll (Ikea 2023), varmluftsugn (AEG 2003), mikro (El-Giganten 2020) och diskmaskin (Miele 2012). Hel kyl och frys (Electrolux 2011) finner ni i matkällaren/matförråd en halv trappa ner. I köket finns det plats för ett bord för 4-5 personer. På golvet vilar ett mörkgrått klinker och väggarna är tapetserad. Det är helt klart ett kök för den matintresserade då det finns gott om arbetsytor och förvaring. I mitten finns en köksö med induktionshäll, trevligt och inbjudande vid middagsbjudningar. Kaminen är ett smycke i sig som står rustikt och vackert i ena hörnet av köket och har används flitigt både för värmen och mysfaktorn!
Vidare når ni vinterträdgården som ligger en halv trappa ner från köket. Ljuset flödar fint in genom de stor fönsterpartierna som man under sommarhalvåret gärna öppnar upp ut mot trädäcket. Under vinterhalvåret kan man istället sitta där i en skön fåtölj med en mysig bok och titta ut när snön faller och va ett med naturen.
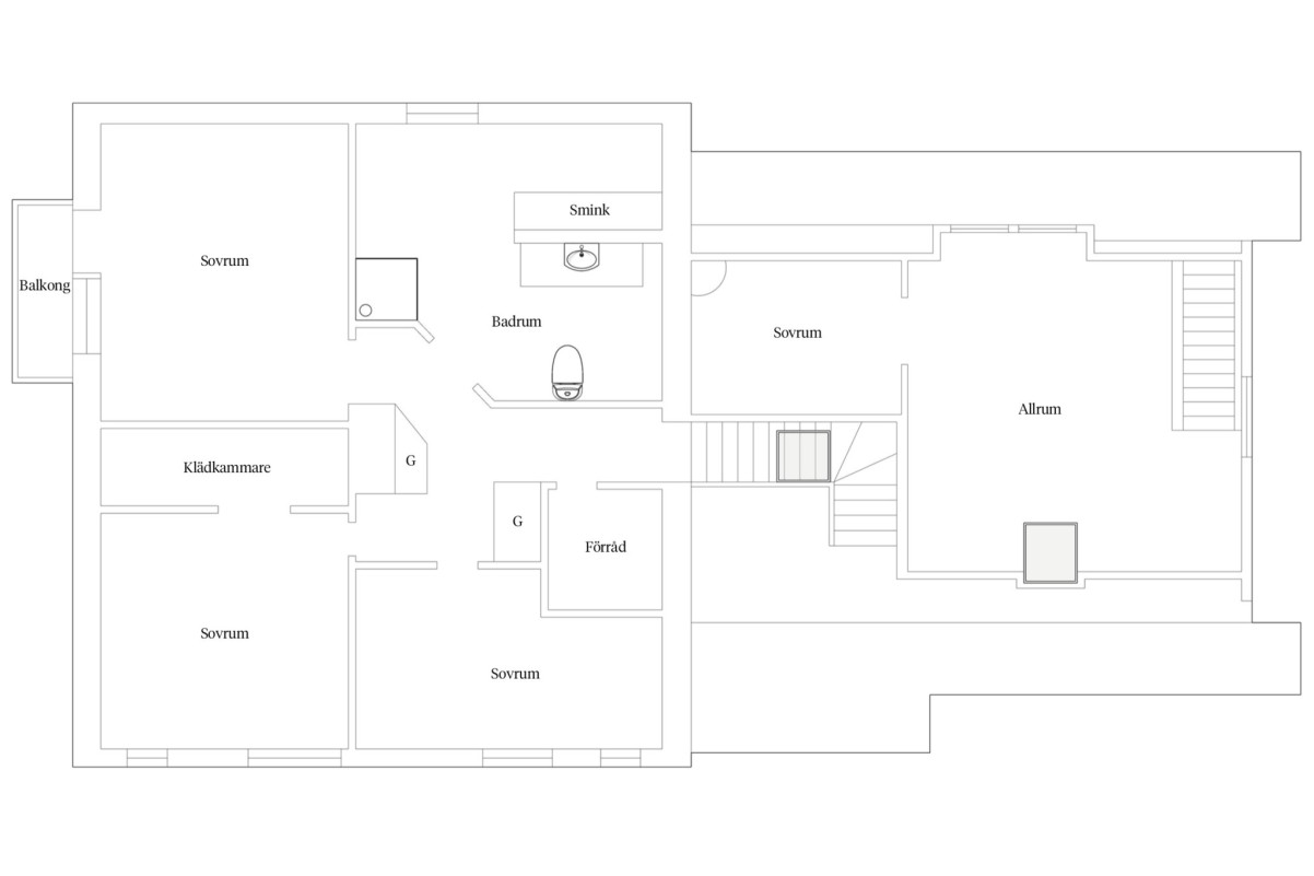
I ena änden av vinterträdgården finns ytterligare en ytterdörr. Detta gör det praktiskt för den som har eget företag. Det finns även en gästtoalett i anslutning till hallen. Hallen leder sedan vidare mot en trappa upp mot en del av ovanvåningen. Perfekt för ett stort kontor, ateljé eller varför inte som ett tonårsrum. En egen ingång, ett stort allrum och ett sovrum, vad mer kan en tonåring önska?
Från hallen vid den stora entrén når ni andra delen av ovanvåningen. Väl ovanför den pampiga vackra trä trappan erbjuds det bra med förvaring i flertal garderober. Direkt till höger har ni ovanvåningens badrum som är stilrent och modernt, totalrenoverat i vitt kakel, grått klinkers och teak trädetaljer. Badrummet är utrustat med toalett, handfat med kommod och dusch samt en perfekt sitt plats för den som uppskattar att få plats med allt smink och hudvård. De finns även en mysig liten platsbyggd bänk vid fönstret att sitta vid, otroligt charmigt!
Sovrum 1 har ni rak fram på övre plan. Det är rymligt och ger lätt plats till en stor dubbelsäng med tillhörande möbler. Här har ni även en härlig balkong att stiga ut på och ta morgonkaffet på. På golvet vilar ett massivt ekgolv och väggarna ljusa, delvis målade delvis tapetserade.
Sovrum 2 är också rymligt och ger plats till en dubbelsäng med tillhörande möbler. Här finns en stor klädkammare, perfekt till alla kläder. I rummet finns ett vackert litet runt fönster som detalj! På golvet vilar ett massivt ekgolv och väggarna ljusa, delvis målade och tapetserade samt en bröstpanel.
Sovrum 3 är ljust och luftigt och även det ger plats till en större säng med möbler. Även här finns ett litet runt fönster! På golvet vilar ett massivt ekgolv och väggarna delvis målade i vitt samt tapetserade med naturen i fokus.
Trädgården ger plats till många härliga uteplatser. En terrass ovanför carporten. Ett stort träddäck som sträcker sig från vinterträdgården till staketet - med en doft från vita syrener i en privat atmosfär kan ni både koppla av och slå till med många och långa middagar för vänner och familj! Det finns även fruktträd såsom körsbärsträd och plommonträd, grillplats under trädet mot skogen och en enormt stor härliga gräsmattan - perfekt att leka på!
Källaren nås utifrån och där finns möjlighet till förvaring samt perfekt hörn för vinförråd!
Kort fakta
Byggnad
2025 - Nya fönster isolerglas 3-glas med ljudisolering.
2023 - Renoverat delar av taket och ny plåt på skorsten
2024 - Golvet i köket nytt
2016 Indraget kommunalt vatten och avlopp.
2011 - Golvet (klinkers) i hallen lades, nytt golv i alla sovrum samt övre plan i tonårsrummet och i salongen. Målning i hela huset och tapetsering.
2011 - Ny elcentral (Dokument finns)
2011 - Badrum på övré plan totalrenoverades. (Dokumentation i form av bilder fakturor finns).
2010 Bytt Luft/vatten värmepump Nibe.
2008 Byggdes vinterträdgården därtill gästtoaletten.
2003 Köket renoverades.
1998 Badrum/tvättstuga på förstaplan renoverades.
Kamin fungerar och är provtryckt. Protokoll finns.
Fastigheten nämns i Helsingborgs stads bevarande program och benämns som Kulturhistorisk värdering. Vänligen kontakta Helsingborgs kommun för att ta del av ytterligaste information.
Tomten
1 899 kvm.Uteplats
Träddäck på baksidan som lätt nås från vinterträdgården inifrån. Terrass ovanför carporten. Grillplats vid grönområdet mot skogen. Möjligheter för flertal uteplatser om så önskas.Bilplats
Garage med plats för en bil samt ihopbyggt förråd. Får plats med flertal bilar på den stora uppfarten och grusrondellen.TV- och internetanslutning
Bredband: Internet: Fiber.Driftskostnader
Besiktning
Bostaden är besiktigad.Energideklaration
Försäkring
Läns. Bostaden är fullvärdesförsäkrad.Övriga byggnader
Finns ett stort fristående garage på ca 30 kvm enligt säljaren med förråd samt loft till ytterligare förvaring. Samt en carport på 35 kvm enligt säljaren.Källare ca 40 kvm enligt säljaren som nås utifrån.
Ekonomi
Pantbrev
Totalt 8 st pantbrev om 3 060 000 kr.Servitut / Planbestämmelser
Last: Officialservitut Tillträde, 1283K-2018/55.2

