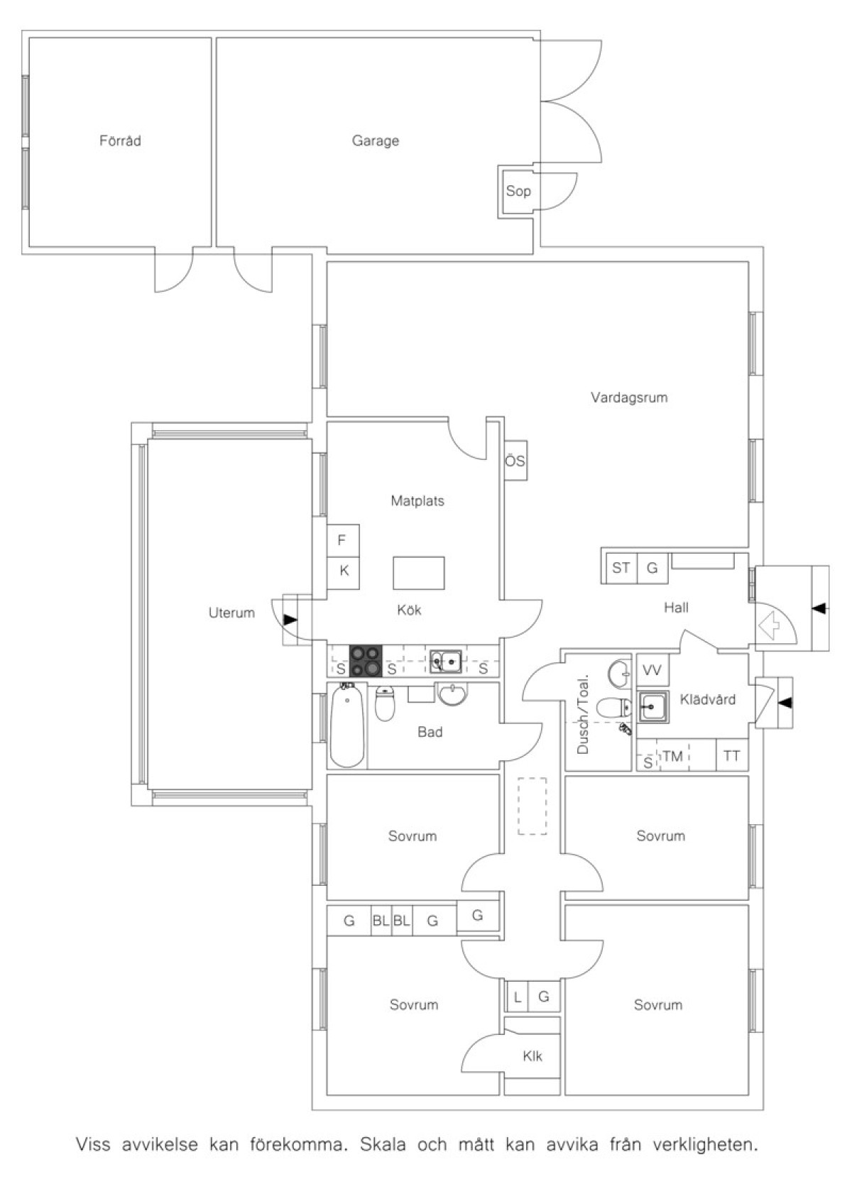
Rumsbeskrivning
Huset välkomnar er med tre praktiska entréer – via uterummet, grovköket eller den huvudsakliga entrén som nås genom den charmiga och välskötta entréträdgården. Redan när man kliver innanför dörren infinner sig känslan av ett omsorgsfullt omhändertaget och varmt familjehem. Hallen erbjuder smidig förvaring i garderob samt gott om plats för barnens ytterkläder, skor och väskor.
Direkt till vänster ligger grovköket – en dröm för barnfamiljen – utrustat med tvättmaskin från 2015 och torktumlare från 2022, perfekt för vardagens alla aktiviteter och snabba tvättbehov. Rakt fram öppnar sig det stilrena vita köket från 2013 med svart stenskiva och rostfria vitvaror från samma år. Här möts design och funktion i en smart planerad köksö som ger extra arbetsyta, förvaring och en naturlig samlingsplats för familjen under matlagning och läxläsning.
I köket finns en trevlig matplats för vardagens måltider, medan den angränsande matsalen passar perfekt för större middagar och högtider. Ekparkett löper genom kök, allrum och hall och skapar ett harmoniskt och enhetligt intryck. Matsalen ligger i öppen planlösning mot det rymliga allrummet där hela familjen får plats i soffan och där kaminen skapar en extra mysig stämning under årets kallare månader.
Via innerhallen når man den mer privata delen av huset med fyra sovrum – optimalt för den växande familjen. Samtliga sovrum har laminatgolv och ett av rummen har dessutom egen klädkammare. I anslutning finns två fräscha, helkaklade badrum som renoverades 2007. Det större badrummet har badkar och fönster, medan det andra erbjuder dusch – en perfekt lösning för familjens morgonstress och lugna kvällsrutiner.
Renoveringar
1986 Byggt uterum och installerat kamin
1995 Fönsterbyte.
1998 Oljeelement.
2003 Byte av panel södergavel.
2005 Varmvattenberedare, byte förråds- och garagedörr, förrådspanel.
2006 Bytt innerdörrar, takomläggning garage/förråd.
2007 Renovering av badrum, förrådsfönster.
2008 Uterumstak.
2013 Renovering av kök, vindskivor södersidan, golv kök och hall, eldrivna markiser.
2015 Avlopppsspolning.
2018 Garageport.
2015 + 2019 Takrengöring via svensk takvård.
2023 Värmepump.
Bra att veta
Uppgifterna i objektsbeskrivningen härrör huvudsakligen från säljaren och kontrolleras av fastighetsmäklaren endast om omständigheterna ger anledning till detta.
För att ta del av de skyldigheter som ligger på dig som köpare så läs igenom pdf´n "Juridisk köparinformation" som finns att klicka ner under fliken "Dokument". Den delges även i objektsbeskrivningen som ni får på visning.
Förbered dig så mycket du kan för att få bästa förutsättningar när eventuell budgivning kommer igång genom att kontakta din bank angående lånelöfte eller så ber jag vår samarbetspartner kontakta dig för ett erbjudande. Äger du ditt boende idag? Behöver du sälja för att kunna köpa nytt? Jag hjälper dig gärna med en värdering och planerar din försäljning på bästa sätt.

