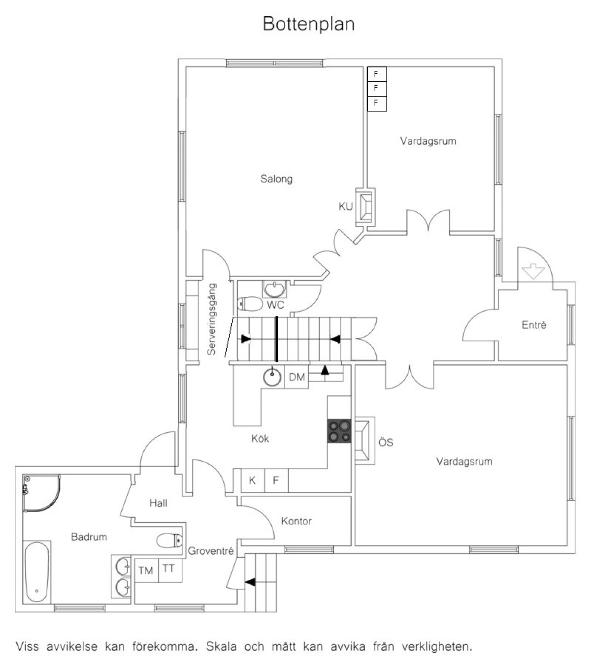
Entré/Lobby
En stor och vacker lobby välkomnar besökare efter entrén. Med ett elegant stengolv som övergår till varsamt behandlat originalgolv och vackra pardörrar till olika avdelningar, bevarade snickerier överallt.
Större Vardagsrum
Elegans definieras av en fin tegelvägg med eldstad, stora rundade fönster, och behandlade original golv, fullt av bevarade snickerier. Denna avdelning är rejäl och inbjuder till stora möblemang.
Vardagsrum/Tv-rum
Samma vackra vackra fiskbensparkett som sedan vandrar över in i matsalen. Denna avdelning har en genomgående kakelugn som ger värme i dubbla rum, väldigt trevlig och vacker. Samma vackra rundade fönster ger mycket fint ljusinsläpp. Denna avdelning är perfekt som generös TV-avdelning.
Slaong/Matsal
En rejäl matsal som verkligen är värd namnet. Här kommer de största borden i och de vackra materialen är verkligen på sin plats. Kakelugnen har sin plats och köket nås genom serveringsgång.
Kök
Trevligt kök från 2007. Gott om arbetsytor och fullutrustat förstås. En trevlig halvö skapar den perfekta familjematplatsen dessutom.
Gäst W/C
Klinker på golv samt toalett och vask.
Kontor
Mindre rum vid grovköksingång som fungerar perfekt som litet kontor samt förvaring.
Grovkök
Klinker på golv med underliggande golvvärme. Här finner vi grovköksingång, tvättavdelning samt kontakt med trädgårdssidan genom en tredje hall.
Badrum
Stort och härligt badrum där man låtit öppna upp i nock. Kakel och klinker i mörkgrå kulörer samt inrett med både dusch och badkar. Dubbel kommod, toalett, trevlig belysning och självklar golvvärme.
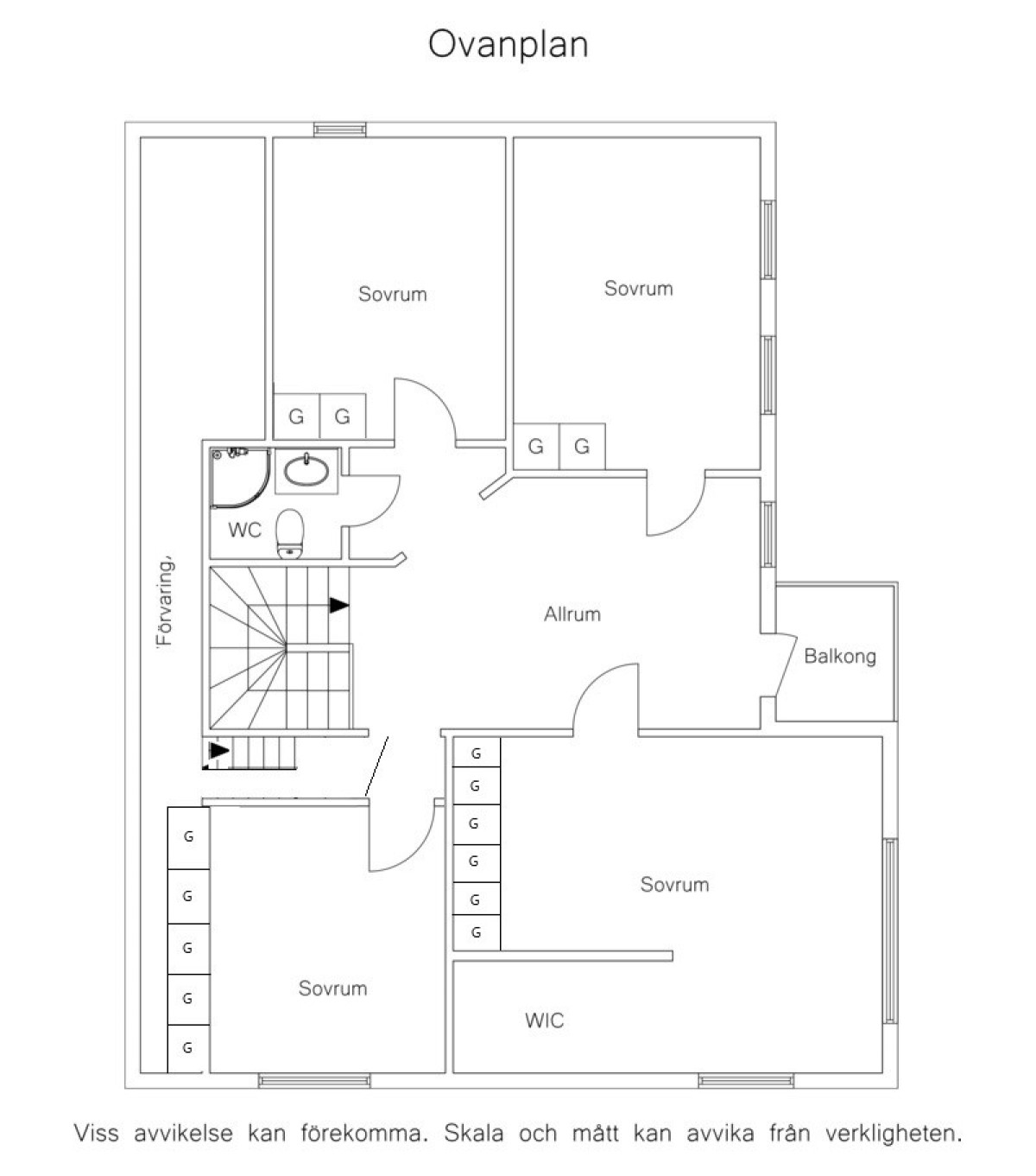
Lobby Ovanplan
Ovanplans lobby som delar av alla sovrums avdelningarna på ett trevligt vis. Härifrån nås även balkong. Klassiska snickerier, vackra golv, bevarade snickerier och dörrar samt access till ovanplans badrum.
Master bedroom
Ett rejält sovrum med bra förvaring genom walk in closet samt flertalet garderober. Samma vackra snitt på inredningen.
Sovrum 2
Alla sovrummen är av bra storlek och följer samma stil som resterande delar av ovanvåningen. Bra förvaring genom garderober och plats till stor säng.
Sovrum 3
Alla sovrummen är av bra storlek och följer samma stil som resterande delar av ovanvåningen. Bra förvaring genom garderober och plats till stor säng.
Sovrum 4
Alla sovrummen är av bra storlek och följer samma stil som resterande delar av ovanvåningen. Bra förvaring genom garderober och plats till stor säng.
Badrum Ovanplan
Klinker på golv och kaklade väggar. Inredning genom dusch, toalett och kommod. Bekväm golvvärme förstås.
Sidoförvaring/Vind
På nordsidan av huset har man låtit renovera kattvindar och vind till en bra förvaringsplats. Vinden kan även erbjuda sovplats för gäster eller för den delen fungera som hobby avdelning.
Källare
I källare finner vi teknikrum samt bra med plats för verktyg och förvaring.
Utemiljö
Vacker framsida med smides staket och planteringar. På västra sidan av huset har man en gruslagd uppfart där det tidigare även funnits bygglov för garage. Baksidan erbjuder en fin trädgård med möjligheter att skapa fler uteplatser och en inhängande oas. Här hr man egentligen endast en granne då resterande är gränser är trädgårdar eller parkytor. Mindre förråd för cyklar finne även här.

