Sälj med oss Till salu Om oss Våra partners Kontakt Karriär
Kommande

Kompanigatan 12

Tågaborg

3 rok
86 kvm
3 795 000 kr
Alla bilder
Pre sale

Tjugotalsklassicism i sitt esse - på Tågaborgs bästa "tårtbit"

Bland vacker bebyggelse från sekelskiftet, i eftertraktade kvarter och med närhet till Vikingsbergsparken bor du här på Tågaborgs kanske bästa "tårtbit". I det läckra tjugotalshuset på Kompanigatan 12 gömmer sig denna vackra trerummare, renoverad med känsla för finish. Ett hem där det moderna levandet samspelar med välbevarade snickerier, fiskbensparkett, takrosetter, ornament och balkong med dubbeldörrar. Det är nog kanske så Tjugotalsklassicismen, år 2025, visas från sin bästa sida - Välkommen hem!

I lägenheten på tredje våningen ges stora sociala ytor, kök med matplats och balkong med dubbeldörrar, stort badrum och två ordentliga sovrum varav ett master med stor walk-in-closet. Med sitt genomgående ljusinsläpp och balkong mot söder ges ett fantastiskt ljusinsläpp under dagtid och likväl från eftermiddagen när solen tittar in genom fönstren i vardagsrummet. Här ligger läckert brädgolv och fiskbensparkett i original, väggarna är släta, målade i lugna, sobra kulörer och taket berikas med både takrosetter samt ornament. Lägenheten renoverades under 2022 med fingertoppskänsla. Här ges en hall med gott om plats för både ytterkläder och skor. Köket med inredning från HTH, granitbänkskiva och maskinell utrustning som exempelvis spishäll från Bora är exklusivt och rymmer ett större matbord. Sovrummen ligger i vardera ände av bostaden och badrummet är inte bara helkaklat i och med föreningens stambyte 2005 utan väl tilltaget och utrustat med tvättmaskin. Här är det verkligen bara att flytta rakt in!

Brf Kompanigatan 12 är en stabil förening med 10 bostadsrätter i en välskött byggnad från 1929 som bland annat renoverat stammar och fönster år 2005. Föreningen är belägen i kvarteret Falken som har en samfällighet med ansvar för den gemensamma innergården där både miljöhus, cykelparkering, sandlåda m.m. finns att tillgå. Föreningen har även en egen övernattningslägenhet.

Mer information på vår hemsida www.3etage.se
Välkommen på visning med fastighetsmäklare Alexander Larsson.

Typ
Lägenhet
Pris
3 795 000 kr som utgångspris
Månadsavgift
5 689 kr/mån
Boarea
86 kvm
Antal rum
3 rum
Område
Tågaborg
Alexander Larsson
Fastighetsmäklare
alexander.larsson@3etage.se 073-5955772 Intresseanmälan
Kontakta mäklaren för visning på 073-5955772 alternativt alexander.larsson@3etage.se
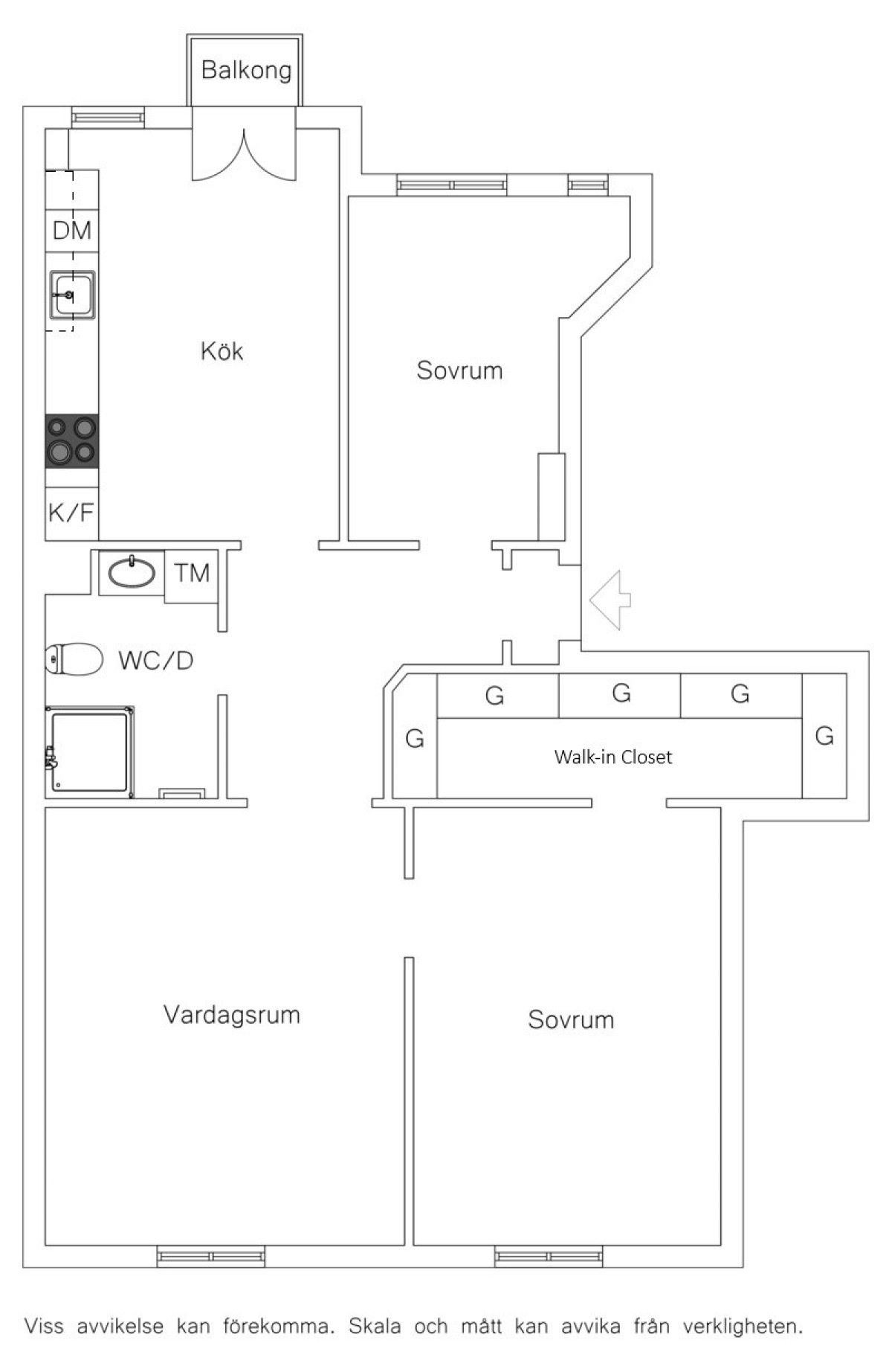
Planritning Planritning

Hall

Ett kliv över tröskeln visar sig de tidstypiska attributen från första anblick. På golv ligger fiskbensparkett och det finns goda avhängningsmöjligheter samt plats för skorna. Vidare genom en välvd öppning kommer vi till Tamburen som binder samman lägenheten.

Kök

Köket är renoverat 2022 med exklusiva varumärken som Bora, HTH och med läckra detaljer som beslag från Knokk samt bänkskiva av granitsten. Här ges en god maskinpark med integrerad och kombinerad kyl/frys från Electrolux, induktionshäll med inbyggd fläkt från Bora, integrerad diskmaskin samt ugn i arbetshöjd från Siemens. Förvaringen kommer i både under- samt överskåp. På golv ligger ett läckert brädgolv i original som slipats i och med renoveringen, väggarna är målade och kulörerna är genomgående samspelta. Invid ges matplats för 8 personer utan bekymmer. Från köket nås även lägenhetens balkong som tack vare sina inåtöppnande pardörrar gör den fullt möblerbar. Perfekt för morgonkaffet eller den enklare lunchen i dagssolen.

Vardagsrum

Vardagsrummet är tilltaget och rymmer en större soffgrupp för både lugna hemmakvällar likväl som för festen. Här samspelar fiskbensparketten i orignal med de tidstypiska radiatorerna, djupa fönsternischerna samt ornament och takrosetter ovantill. Utanför fönstren är bebyggelsen låg vilket bidrar till rummets luftiga känsla. Här ges ett lyxigt intryck precis som en lyxig lägenhet skall göra.

Master Bedroom

Detta sovrum går verkligen under epitetet "Master bedroom". Här ges gott om plats för både stor säng, nattduksbord, byråer och skrivbord om så önskas. Kläderna förvarar du i en stor walk-in-closet fylld med PAX-garderober och en härlig heltäckningsmatta. På golv i rummet ligger ett brädgolv i original och i tak finns både takrosett och ornament. Likt från vardagsrummet är bebyggelsen låg utanför fönstret vilket gör rummet insynsskyddat.

Sovrum 2

Bostadens andra sovrum vetter mot innergården. Till storleken är det perfekt för barnet, gästen eller som hemmakontor. Här kläs golvet av en ljus heltäckningsmatta som samspelar med de i övrigt ljusa väggarna.

Badrum

I och med föreningens bildande 2005 gjordes även ett stambyte i föreningens byggnad med efterföljande badrumsrenovering. Till storleken ges ett generöst badrum med plats för exakt allt du behöver. Vask med kommod, WC, duschhörna med glasdörrar, handukstork, tvättmaskin samt skåp till förvaring. Både kakel och klinker går i tidlös naturfärgad ton.

Kort fakta

Typ
Lägenhet
Adress
Kompanigatan 12
Område
Tågaborg
Kommun
Helsingborg
Pris
3 795 000 kr
Månadsavgift
5 689 kr/mån
inkl. värme, vatten och kabel-TV basutbud
Upplåtelseform
Bostadsrätt
Antal rum
3 rum
Boarea
86 kvm / Areauppgifter enligt bostadsrättsföreningen

Byggnad

Byggnadstyp
Flerfamiljshus
Byggnadsår
1929
Fönster
Isolerglas
Uppvärmning
Fjärrvärme
Våningsplan
3 av 5. Hiss finns.
Renovering
Under 2022 har säljarna gjort en större renovering i lägenheten:
- Gamla originalgolv har tagits fram i kök och sovrum.
- Slipning och behandling av samtliga golv samt alla trösklar har gjorts vid.
- Lagt heltäckningsmatta i Sovrum 2
- 3 mindre klk. har slagits ihop till en stor walk in closet med heltäckningsmatta och garderober (PAX) har ställts in.
- Entrén har byggts ut för naturlig plats åt skor och kläder.
- Nytt kök (HTH) har installerats med kompositstenskiva samt ny maskinpark från bland annat Bora, Electrolux och Siemens.
Övriga byggnader
Till lägenheten hör ett källarförråd. Det finns även gemensam tvättstuga och övernattningslägenhet.

Ekonomi

Andel i föreningen
10.226%
Andel av årsavgift
10.226%
Nettoskuldsättning
599 067 kr. Enligt uppgifter från 2024 års årsredovisning
Bostaden är pantsatt
Nej

Driftkostnader

Hushållsel
400 kr
Summa
400 kr

Schablonberäknat. Kostnader är individuella och varierar beroende på familjesammansättning, vanor och ålder på vitvaror. Självklart tillkommer kostnad för hemförsäkring.

Energideklaration

Status
Utförd (2023-05-10)
Primärtenergital
103 kWh/m2/år
Energiklass
E

Uteplats

Till lägenheten hör en balkong. Föreningen har en gemensam innergård med kvarteret Falken som sköts om av samfällighet Falken.

Förening

Namn
Brf Kompanigatan 12
Organisationsform
Bostadsrättsförening
Org.nummer
769612-7443
Föreningen äger marken?
Ja
Äkta/oäkta förening?
Äkta
Antal lägenheter
10 st
Antal lokaler
1 st
Överlåtelseavgift
588 kr (betalas av Köpare)
Pantsättningsavgift
588 kr
Tillåts juridisk person?
Nej
Tillåts delat ägande?
Gemensamma utrymmen
I källaren finns gemensam tvättstuga och förråd till lägenheterna. På innergården finns miljöhus som är gemensamt för kvarteret genom deras samfällighet, likväl som sandlåda/lekplats och cykelställ.
Allmänt om föreningen
Bostadsrättsföreningen Kompanigatan 12 bildades 2005. Under detta år totalrenoverade man hela fastigheten med bland annat stambyte och vindsutrymmet gjordes även om till två läckra etage-våningar. Huset som är i ett gott skick erbjuder även en unik övernattningsbostad där du som medlem kan hyra denna för dina nära och kära. Föreningen består av 10 bostadsrätter om totalt 823,5 kvm.

Lägenheterna är fördelade enligt följande:
3 rum & kök: 8 st
4 rum & kök: 2 st

Lokalyta uppgår till 47 kvm.

Om området

Tågaborg som ligger på Landborgen är av de flesta ansett som ett av Helsingborgs mest attraktiva områden. Härifrån är det nära till Pålsjö Skog med sina promenadstråk, lummiga Vikingsbergparken, för att inte tala om havet som bara är en kort promenad bort. Det tar ca 10 minuter att gå till fots till Helsingborgs absoluta centrum (två minuter med cykel). I närheten finns även ett stort antal små, trevliga blomster-, frisör- och gourmetbutiker.

Parkering

Gratis parkering finns på omkringliggande gator. Under Tågaborgsskolan finns garage, längs med Erik Dahlbergs gata finns parkeringsplatser och på Michal Löfmans gata. Samtliga att hyra och med separat kö.

Intresseanmälan