Sälj med oss Till salu Om oss Våra partners Kontakt Karriär
Kommande

Snösparvsgatan 19

Mariastaden

5 rok
112.6 kvm
3 725 000 kr
Alla bilder
Pre sale

Naturnära & harmoniskt!

Nu bjuds det på ett modernt boende i två plan med stora fönster, spännande arkitektur och med trädgård i perfekt och soligt västerläge. Här har man underbar kontakt med naturen på ett av Mariastadens absolut bästa läge nära Kungshultsskogen och Linnéaträdgården. Det bjuds på ett vackert skådespel som skiftar kulör efter årstiderna vilket man kan avnjuta från uteplatsen och allrummet. Ett boende som måste upplevas på plats.

Brf Linnéa består av 37 bostäder som stod klara för inflyttning under maj 2019. Alla bostäder har uteplatser både mot öst och väst. Egen biluppställningsplats och förråd på tomten ingår. Fasaderna består av snyggt rött tegel med vackra tegelomfattningar kring fönster och dörrar. Man har tänkt på miljön så på bostadstaken ligger sedum. Arkitekten har varit generös med fönsterstorlekar och takhöjd, så det är mycket ljusa och luftiga bostäder som växt fram.

Boka visning med ansvarig mäklare Roger Billsten via e-post till: roger@3etage.se eller samtal/sms till: 0735179333.

Typ
Radhus
Pris
3 725 000 kr som utgångspris
Månadsavgift
5 947 kr/mån
Boarea
112.6 kvm
Antal rum
5 rum
Område
Mariastaden
Roger Billsten
Fastighetsmäklare
roger@3etage.se 0735-179333 Intresseanmälan
Kontakta mäklaren för visning på 0735-179333 alternativt roger@3etage.se
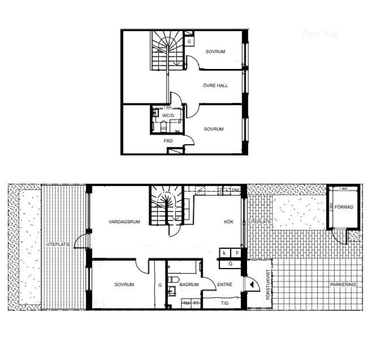
Planritning Planlösning
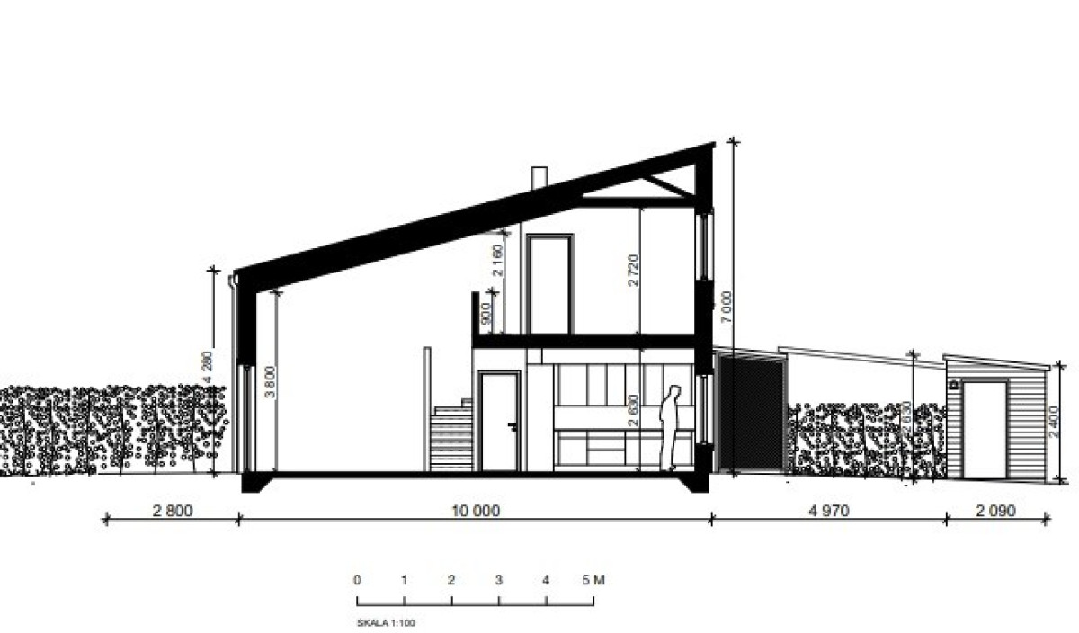
Planritning Sektionsritning

Rumsbeskrivning

Här bor man i ett villalikt boende där man parkerar bilen bekvämt på den stensatta biluppställningsplatsen vid entrén. På entrésidan finns även ett förråd till cykeln eller kanske barnvagnen och en naturlig plats finns för utemöblerna om man vill ta sitt morgonkaffe i solen.

Vi kliver in och möts av en praktisk hall med klinkergolv samt bra plats för att hänga av sig ytterkläderna. Vid entrén nås även ett stilrent helkaklat badrum med tvättmaskin samt torktumlare, förvaring och ett badkar. Vidare nås det ljusa köket och här liksom i resten av bostaden ligger den snygga och vitpigmenterade ekparketten. En rymlig matplats bjuds det på liksom ett ljust snyggt kök med gott om skåpsförvaring samt mörk bänkskiva som bra kontrast mt det ljusa. Säljarna har flyttat på kyl/frys vilket skapat mer bänkyta och en smartare layout. Sen öppnar bostaden upp sig till ett fantastiskt vardagsrum med högt i tak och via de stora fönsterpartierna flödar ljuset in. Här har man dessutom utgång till trädäcket / trädgården som vetter i solsäkert västerläge från vilken man kan avnjuta sommaren sent in på kvällarna. Ett luftigt sovrum med bra förvaring finns också på entréplanet och under trappan upp finns ett förråd. Golvvärme i hela entréplan samt effektivt ventilationssystem (FTX) ger hög boendekomfort.

Väl uppe på ovanvåningen är det öppet ner till vardagsrummet och även på detta plan ligger samma vitpigmenterade ekparkett. I dagsläget finns det två sovrum samt en möblerbar yta som passar perfekt till ex arbetsrum eller ett litet allrum för spelsugna barn. På ovanvåningen bjuds det på ytterligare ett helkaklat duschrum med takfönster och som sagt två sovrum. Från master bedroom nås det ett rymligt biutrymme som kan ha många användningsområden utöver förvaring. Bara fantasin sätter gränserna.

Bra att veta

Uppgifterna i objektsbeskrivningen härrör huvudsakligen från säljaren och kontrolleras av fastighetsmäklaren endast om omständigheterna ger anledning till detta.

För att ta del av de skyldigheter som ligger på dig som köpare så läs igenom pdf´n "Juridisk köparinformation" som finns att klicka ner under fliken "Dokument". Den delges även i objektsbeskrivningen som ni får på visning.

Förbered dig så mycket du kan för att få bästa förutsättningar när eventuell budgivning kommer igång genom att kontakta din bank angående lånelöfte eller så ber jag vår samarbetspartner kontakta dig för ett erbjudande. Äger du ditt boende idag? Behöver du sälja för att kunna köpa nytt? Jag hjälper dig gärna med en värdering och planerar din försäljning på bästa sätt.

Kort fakta

Typ
Radhus
Adress
Snösparvsgatan 19
Område
Mariastaden
Kommun
Helsingborg
Pris
3 725 000 kr
Månadsavgift
5 947 kr/mån
I avgiften ingår sophämtning och vatten. Medlemmarna behöver själva teckna fjärrvärme samt elabonnemang och fiber/bredband.
Upplåtelseform
Bostadsrätt
Antal rum
5 rum
Boarea
112.6 kvm / Areauppgifter enligt bostadsrättsföreningen Den köpare som anser att den exakta arean är av betydelse, bör låta mäta upp bostaden före köpet.

Byggnad

Byggnadstyp
1 ½ plans radhus
Byggnadsår
2019
Uppvärmning
Fjärrvärme
Ventilation
Mekanisk till- och frånluft, FTX
Renovering
2019 - innerväggar förråd, ute.
2019 - installation av Pax, hall garderob.
2021 - installation av markis, eldriven och appstyrd med vindsensor.
2023- Ombyggnad av kök och extra förvaring badrum nere.
2023- installation av billaddare.
2025 - ommålning av sovrum nere och uppe.
2025 - plattsättning av framsida.
Övriga byggnader
Förråd

Ekonomi

Andel i föreningen
2.876%
Andel av årsavgift
2.876%
Nettoskuldsättning
1 201 964 kr. Beräknat med hjälp av uppgifter i föreningens senaste årsredovisning 2024
Bostaden är pantsatt
Ja

Driftkostnader

Uppvärmning
719 kr
Hushållsel
1 098 kr
Summa
1 817 kr

Driftkostnadens summa är individuel och varierar beroende på familjesammansättning, ålder på vitvaror samt vanor. Försäkring tillkommer.

Energideklaration

Status
Utförd (2022-10-20)
Primärtenergital
67 kWh/m2/år
Energiklass
B

Uteplats

Stensatt entrésida. Fin trädgård med trädäck samt gräsmatta som nås från vardagsrummet.

Bilplats

Stensatt biluppställningsplats vid entrén.

TV- och internetanslutning

Bredband: Fiber via stadsnätet.

Förening

Namn
HSB BRF Linnea
Organisationsform
Bostadsrättsförening
Org.nummer
769625-1888
Föreningen äger marken?
Ja
Äkta/oäkta förening?
Äkta
Överlåtelseavgift
1470 kr (betalas av Köpare)
Pantsättningsavgift
588 kr
Tillåts juridisk person?
Nej
Tillåts delat ägande?
Allmänt om föreningen
Brf Linnéa består av 37 bostadsrätter som stod klara för inflyttning under Maj 2019. Föreningen äger fastigheterna Solfångaren 35 och Jordvärmen 1. Föreningen är försäkrad i Länsförsäkringar och bostadsrättstillägget ingår i avgiften. Man har ej några planerade renoveringar då byggnaderna är i stort sett nybyggda. Man ska spola stammar och ledningar 2024 och då sker även 5-årsbesktningen. Avgiften höjdes 6% från 2024-01-01 samt 2025-01-01. Besök gärna föreningens hemsida www.linnea.hsbbrfwebb.se

Om området

Mariastaden och Maria Park har en miljö med härlig blandning av gammalt och nytt i en varierande arkitektur. Ca 5 km norr om Centrum bor man i en stadsdel med både fantastisk natur samt moderna bostäder. Inom området finns flertalet förskolor, grundskola, vårdcentral, restauranger, stall, fotbollsplaner, gym samt en ICA-affär. Kommunikationerna ner till stan är goda med tät busstrafik och det finns även en tågstation, nämligen Maria Station.

Intresseanmälan