Rumsbeskrivning
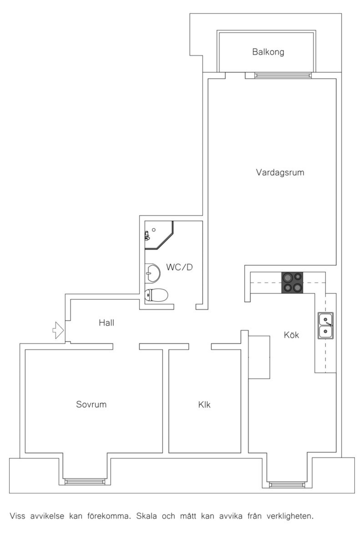
Välkommen in till bostaden! Först står vi i hallen givetvis och direkt vid dörren har vi garderober till förvaring och på golvet ligger det ett laminatgolv. En riktigt stor klädkammare ger plats för alla säsongers kollektioner.
Vardagsrummet är ljust, lättmöblerat och med yta för både soffgrupp och övrig möblering om så önskas. Från rummet går vi ut till söderbalkongen med dess härliga utsikt. Soltimmarna är många att se fram emot här och det finns en markis som solskydd.
2016 sattes ett nytt kök in från EPOQ. Modernt och stilrent är ledorden för detta fina kök som går i vitt. Det finns gott om skåpsförvaring samt bra arbetsytor. Matplatsen rymmer 4 personer och bjuder på trevlig usikt över grannkvarteret.
Ovanligt stort sovrum där man med enkelhet får plats till mer än bara en dubbelsäng. Kanske en dagbädd samt byrå eller varför inte ett hemmakontor? Rummet är lugnt beläget mot gården. Mysig heltäckningsmatta ger rummet en ombonad känsla.
Helkaklat duschrum med ljus färgsättning. Vikbara och praktiska duschdörrar, wc, handfat och komod.
Bra att veta
Uppgifterna i objektsbeskrivningen härrör huvudsakligen från säljaren och kontrolleras av fastighetsmäklaren endast om omständigheterna ger anledning till detta.
Förbered dig så mycket du kan för att få bästa förutsättningar när eventuell budgivning kommer igång genom att kontakta din bank angående lånelöfte eller så ber jag vår samarbetspartner kontakta dig för ett erbjudande. Äger du ditt boende idag? Behöver du sälja för att kunna köpa nytt? Jag hjälper dig gärna med en värdering och planerar din försäljning på bästa sätt.
För att ta del av de skyldigheter som ligger på dig som köpare så läs igenom pdf´n "Juridisk köparinformation" som finns att klicka ner under fliken "Dokument". Den delges även i objektsbeskrivningen som ni får på visning.

