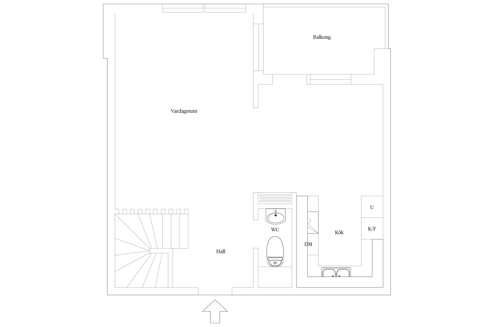
Välkommande hall med avhängningsmöjligheter. Till höger har ni en gästtoalett som är helkaklad, med toalett och vask.
Rakt fram når ni vardagsrummet som är ljust och luftigt, och öppet intill köket vilket skapar stora sociala ytor.
Köket är stilrent med bra arbetsytor och förvaring i både över och underskåp. Köket är utrustat med kyl/frys, vask, diskmaskin, spishäll och ugn. Här finns det även plats för ett köksbord. I anslutning till köket finns även en inglasad balkong med utsikt över området.
I anslutning till hallen finns en trappan ner till nedre plan där ni finner den privata delen. Väl ner för trappan kommer man till en liten hall där ni har bra med förvaring i form av en klädkammare och garderober. Till vänster om trappan på nedre plan är master bedroom beläget, stort och luftigt med god förvaring. Det andra sovrummet på nedre plan har anslutning till bostadens andra balkong, även denna är inglasad.
Badrummet på nedre plan är otroligt smakfullt renoverat och erbjuder vask/kommod, dusch med glasdörrar och wc.
Kort fakta
Byggnad
Ekonomi
Driftskostnader
Energideklaration
Uteplats
2 balkonger finns, ett på varje plan i lägenhetenBilplats
Det finns 111 garageplatser som går att hyra för 330 kr/månad. I dagsläget är det ca 7 personer i kö.Det finns 126 parkeringsplatser som går att hyra för 87 kr/månad. I dagsläget är det 10-15 personer i kö.
Det finns 2 laddstolpar som går att hyra för 360 kr/mån inklusive el. I dagsläget är det kö.
Grannföreningen Runan har stolpar som man kan hyra av dem. Detta kostar då 468 kr/mån + moms och man betalar sedan för sin elförbrukning, ca 3 kr/kWH.
Förening
Avloppspolning
Byte av lås- och passersystem
2021 Fasadrenovering av husen inklusive nya inglasningar
2021 Uppgradering av fjärrvärmecentral
2018 Ny tvättmaskin tvättstuga 3
2018 Besiktning inför kommande fasadrenoveringar
2017 Spolning av avloppsstammar
2017 Renovering av tvättstuga 6
2017 Nytt torkskåp tvättstuga 1
2021/2022 Nytt passersystem gjordes i samband med fasadrenovering
2023/2024 OVK-besiktning
2024 renovering av balkonger, fasad och fönster )
Kommande renoveringar enligt underhållsplan:
Omläggning av asfalt i gångar.
Renovering av garage.
Stambyte (inklusive badrumsrenovering) planeras längre fram men inte klart när.
Inget är påbörjat i dagsläget
(Kontrollerat 2025-06-13).
Föreningen har en underhållsplan som uppdaterats i september 2023. I samband med detta utfördes en fastighetsbesiktning.
Det finns 111 garageplatser som går att hyra för 351 kr/månad. I dagsläget är det ca 7 personer i kö.
Det finns 126 parkeringsplatser som går att hyra för 90 kr/månad. I dagsläget är det 8 personer i kö.
Det finns bilplatser med laddstolpar som går att hyra för 153 kr/mån exkl el. I dagsläget är det 1 person i kö.
Grannföreningen Runan har stolpar som man kan hyra av dem. Detta kostar då 468 kr/mån + moms och man betalar sedan för sin elförbrukning, ca 3 kr/kWH.
Riksbyggen handhar uthyrning av garage- och parkeringsplatser. (Kontrollerat 2025-03-02).
Samtliga lägenheter har ett tillhörande källarförråd.
Föreningen har lokaler i varierande storlek, bland annat större förråd som hyrs ut extra till boende i föreningen, en festlokal samt en lokal som hyrs ut till ett företag som är aktiva i området. Föreningen får intäkter för uthyrning av festlokal och övernattningsrum, vilket baseras på hur ofta lokalerna är uthyrda.
Gemensamt för Ättekullas boende finns Granntjänsten, en arbetsgrupp som arbetar ideellt med bidrag från BRF:erna. Verksamheten syftar till att främja god grannsämja och bryta isolering. Gruppen anordnar välbesökta eftermiddagsträffar med kaffe och dopp med subventionerade priser. Alla boende på Ättekulla är välkomna till gruppens aktiviteter.
Information som berör föreningen är inhämtad via årsredovisning, stadgar och kontakt med föreningen. Avvikelser kan förekomma och som köpare uppmanas du att själv kontrollera samtliga uppgifter, framförallt om något är av extra stor betydelse för dig som köpare.
Den första medlemmen flyttade in i augusti 1977.
Här finns 222 lägenheter som varierar från ett rum och kök till fyra rum och kök, vissa av lägenheterna har fantastisk utsikt över Danmark! Föreningen äger fastigheten Eddan 4, bestående av 222 lägenheter med adress Ättekullagatan 6-22.

