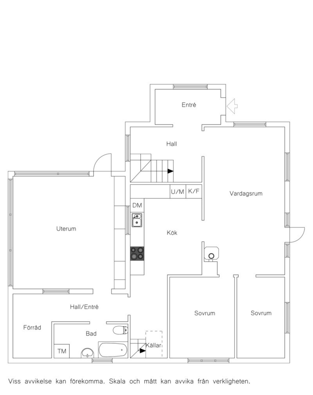
HALL/ENTRÈ
Riktigt välkomnande entré med gott om plats både för gäster och i vardagen. Här hänger man i lugn och ro av sig ytterkläder och ställer skorna på det vackra klinkergolvet i ljusa nyanser och fint mönster.
Hallen fortsätter även innanför entrédelen med samma klinker och riktar man blicken uppåt och följer trappan till ovanvåningen så är de frilagda bjälkarna en inredningsdetalj i sig själva!
VARDAGSRUM
Inbjudande och härligt ljust rum med många fönster samt även utgång till trädgården via altandörr. Här ryms både soffhörna och matsalsmöblemanget.
Golvet i vardagsrummet är enstavs ekparkett i ljus nyans och i rummets ena hörn finns en vacker kamin i gjutjärn som ger extra värme under kyliga höst- och vinterkvällar!
KÖK
Fint kök med inredning från 2021 som verkligen passar husets ålder och karaktär. Den maskinella utrustningen består av kombinerad kyl/frys, diskmaskin, inbyggnadsugn, spishäll och fläkt. Golvet i köket är linoleumgolv i samma färgskala som själva köksinredningen.
I kökets ena hörn är det förberett för att kunna koppla avlopp och vatten vidare upp till ovanvåningens klädkammare för möjlighet att kunna göra ett ytterligare badrum eller wc.
SOVRUM 1
Större sovrum med ljusbetsad ekparkett. Gott om plats för både dubbelsäng och övrig möblering.
SOVRUM 2
Något mindre än sovrum 1 men rymmer likväl en rejäl säng och diverse övrig möblering. Ljusbetsad ekparkett.
BADRUM
Helkaklat badrum med badkar, tvättmaskin, handfat och wc.
Ena långsidesväggen är byggd i glasbetongblock vilket ger ett extra ljusinsläpp från fönstret i passagen utanför. Utöver det finns även ett mindre fönster i badrummet.
UTERUM
Stort uterum med plats för många sittande. Härifrån erbjuds en generös utsikt över fälten som börjar direkt utanför tomten.
Inte sällan kan man sitta här och avnjuta sin kopp kaffe här med Rådjuren lugnt vandrande intill dungen utanför.
Uterummet inrymmer även ett sommarkök med varm- och kallvatten samt avlopp.
PASSAGE/HALL VID KÖK
Utanför köket finns passage som leder till både badrum, uterum och förrådet längst in. Golvet är linoleum i samma färgtoner som det i köket.
Härifrån finns även trappan ner till den lilla källaren som endast utgörs av ett mindre rum under denna del av huset.
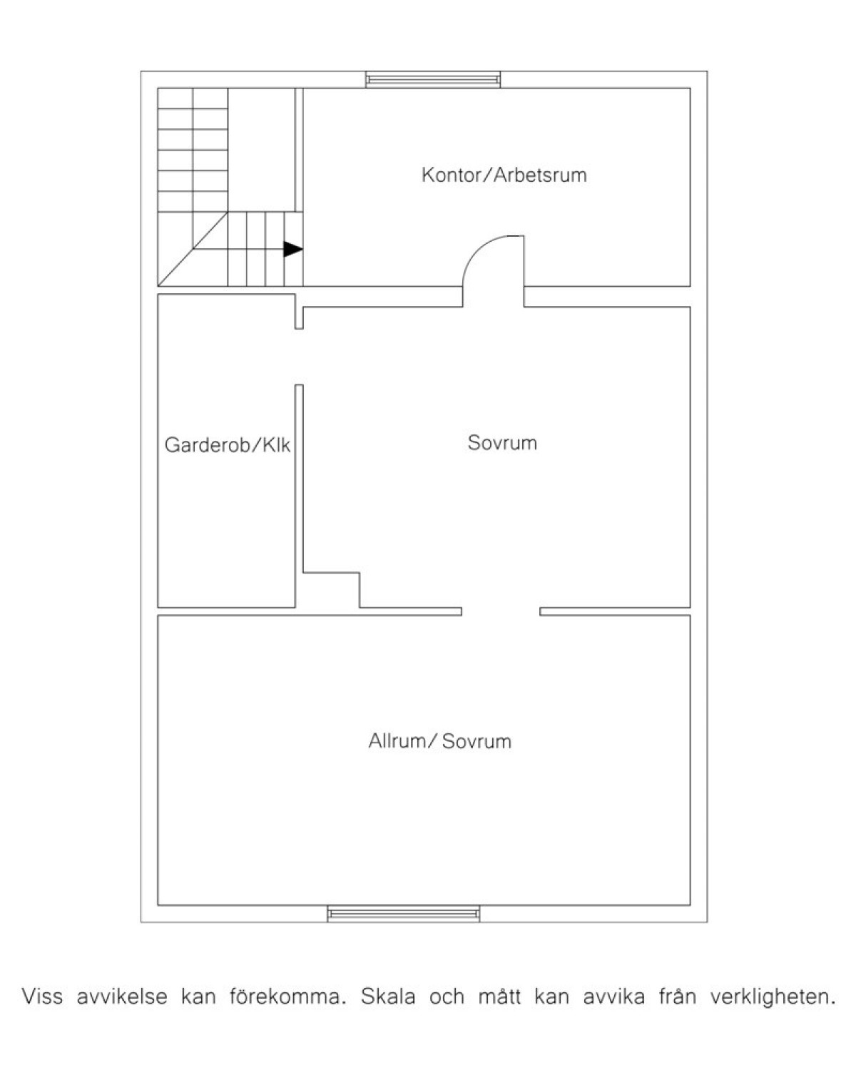
OVANVÅNING
Trappan upp landar vid större och användbar hall eller kontorsyta med fin vy från gavelfönstret. Golvet är vackra ljusbetsade furubrädor och från trappan ser man ner till hallen nedanför genom bjälklagets frilagda bjälkar.
Innanför kontorsutrymmet finns ett genomgångsrum som idag används som gästrum med säng. Även här är det ljusbetsat furugolv och förvaring erbjuds på båda sidor mot snedtaket, på ena sidan i klädkammare och på den andra i garderobsutrymme bakom draperi.
Innanför gästrummet ligger ett större tv-rum som även hade fungerat utmärkt som sovrum beroende på behov. Golvet här är ljusbetsad ekparkett i samma nyans som brädgolvet i rummen utanför.

