Rumsbeskrivning
När du svänger in i Maria Park genom portvaktsbostäderna möts du direkt av Carl Westmans allé – en smal gata kantad av välskötta gräsytor och höga träd. Här ligger en vacker fastighet från 1929, utformad som ett parhus. Huset är välbevarat med fasad i klassiskt Helsingborgstegel kombinerat med ljus puts, röda takpannor och vita fönster med spröjs. De rundade takkuporna i svart plåt och smidesräckena på balkongerna förstärker den tidstypiska karaktären. Tomten omges av en lummig trädgård med buskar, häckar och träd som skapar en privat och grönskande miljö. Det är lätt att förstå varför barnfamiljer trivs här – området är lugnt, naturnära och erbjuder närhet till skolor, förskolor och goda kommunikationer.
Trädgården har under de senaste åren varsamt formats för att knyta an till platsens karaktär. Resultatet är en parkliknande oas med lummig grönska, flera trädgårdsrum och generösa uteplatser som bjuder in till både avkoppling och sociala stunder. Här finns även ett utekök som gör sommarkvällarna extra njutbara. Den stora gräsmattan ger gott om plats för lek, fotboll och andra aktiviteter – en perfekt miljö för både barn och vuxna som vill röra på sig eller bara njuta av den öppna ytan. När rhododendron står i full blom förvandlas trädgården till en färgsprakande dröm, en plats där man gärna tillbringar hela dagen.
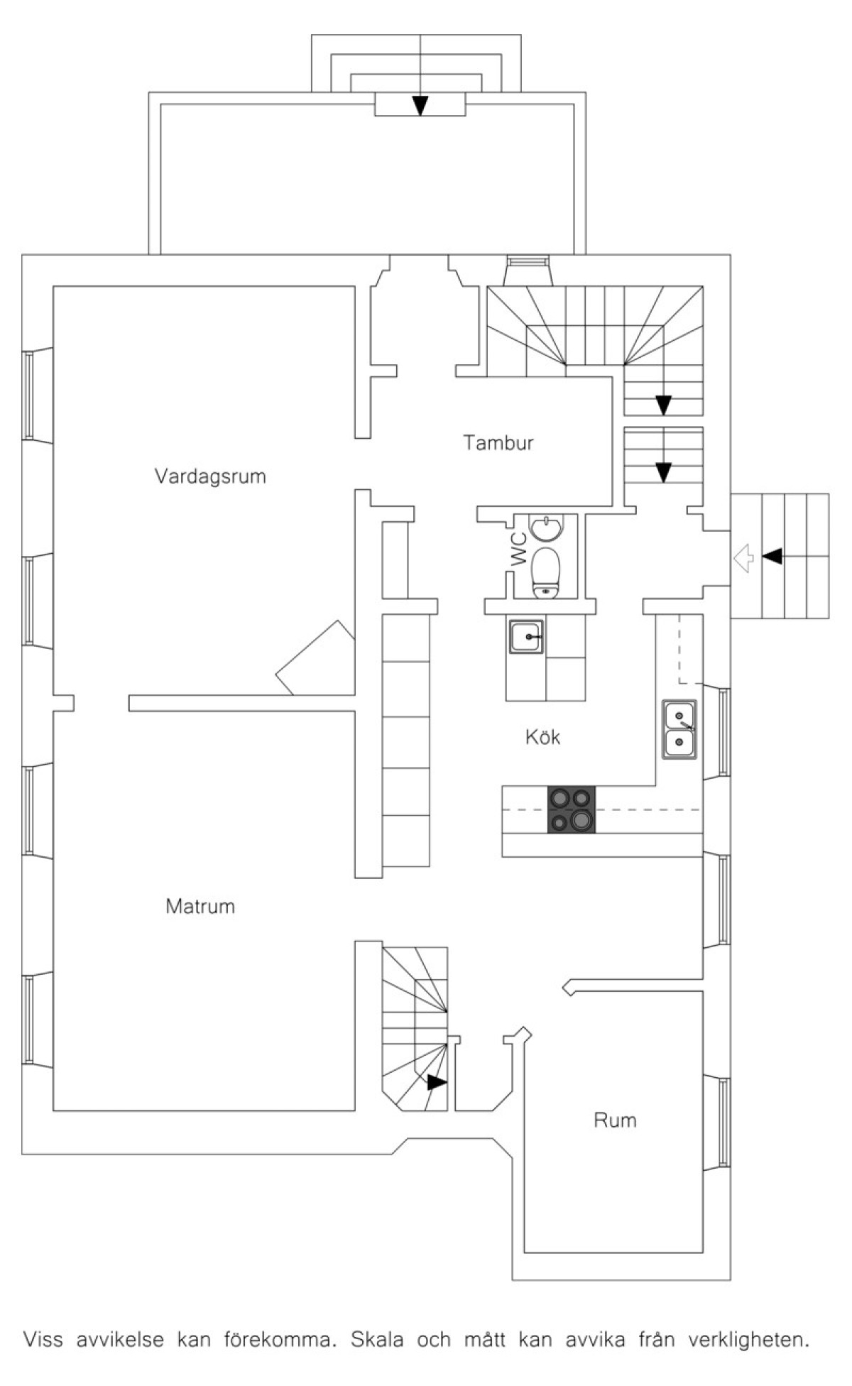
Entrén nås via några trappsteg på husets kortsida, där en vit veranda med klassiska detaljer välkomnar. Dörren har ett dekorativt, bågformat fönster och leder in till ett vindfång med originalgolv i sten. Vidare öppnar sig en rymlig hall med gott om plats för ytterkläder, golvvärme under stora klinkerplattor och träpanel i taket. Till vänster ligger det imponerande trapphuset med marmorerade ytor, ek trappsteg och svart ledstång. Ett runt fönster ger ett vackert ljusinsläpp. Intill hallen finns en renoverad gästtoalett i klassisk stil. Bulthaupköket är modernt och exklusivt, med materialval som äppelträ och lönn samt arbetsytor i metall. Här finns också en integrerad sittplats. Vitvarorna är av märket Gaggenau och diskret inbyggda. Ljussättningen är genomtänkt och tillsammans med stora fönster skapas en ljus och harmonisk atmosfär. En extra trappa, som tidigare användes av tjänstefolk, finns kvar och leder till ett rum som idag fungerar som arbetsrum. Från köket nås matsalen som ligger i öppen följd med vardagsrummet. Här finns många bevarade detaljer från byggtiden, såsom fiskbensparkett och dekorativa taklister. Matsalen rymmer enkelt större middagar. Vardagsrummet har samma generösa rymd, med plankgolv och ljusa väggar. En kakelugn utgör både ett vackert inslag och en värmekälla. Härifrån leder pardörrar ut till trädgården och en stor altan.
En elegant trappa leder upp till ovanvåningen där en hall förbinder tre rymliga rum. Två av rummen har tillgång till balkong med utsikt över landskapet och skogen. I anslutning finns en klädkammare med exklusiva materialval. Det största rummet kan användas antingen som sovrum eller vardagsrum är mycket rymligt. På våningen finns även ett stilfullt badrum med påkostade material och utrustning såsom dusch, dubbla handfat och jacuzzibadkar.
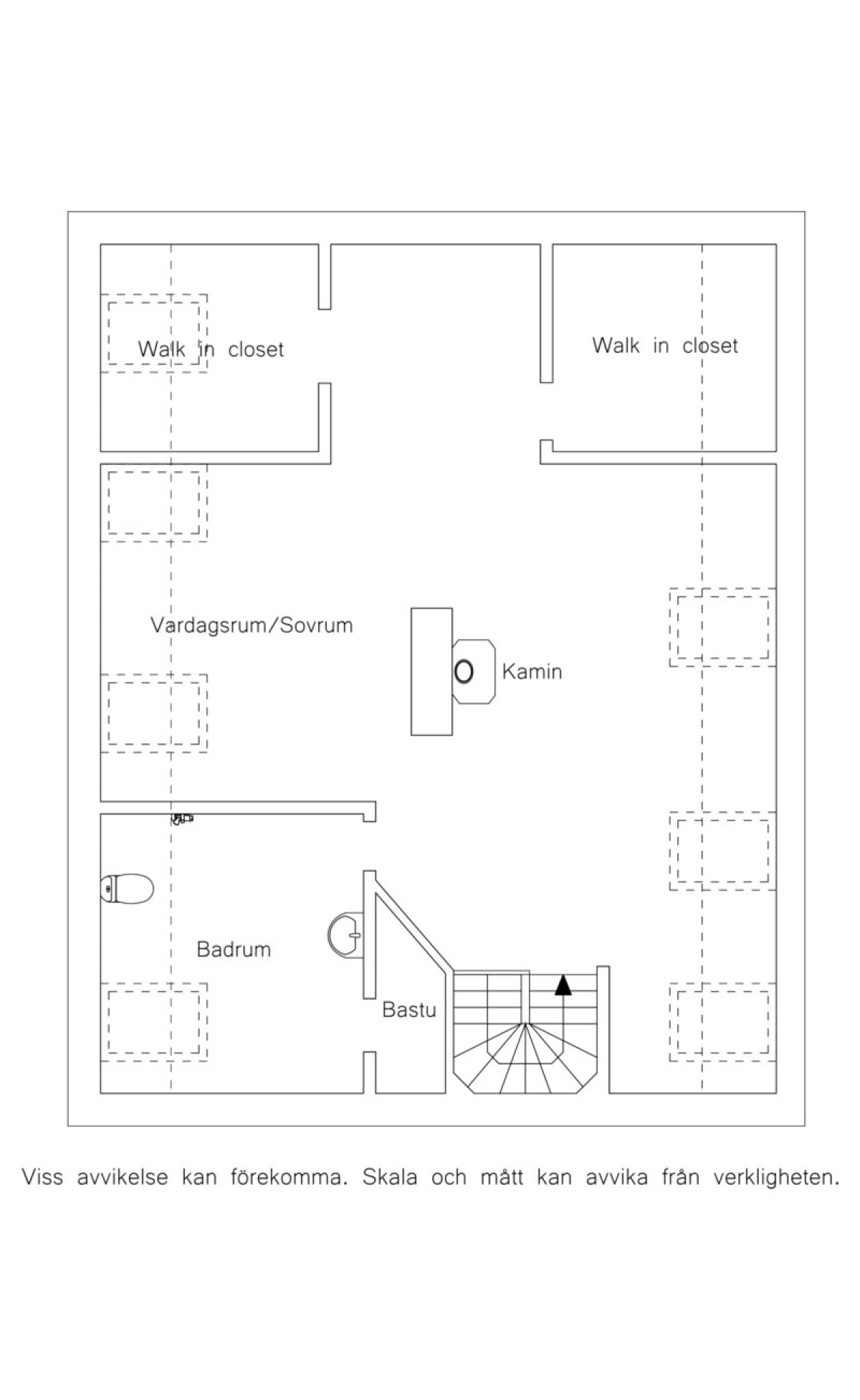
Den tidigare vinden har byggts om till en charmig och genomtänkt bostadsyta med öppet upp till nock och vackra synliga bjälkar. Här ryms både ett mysigt vardagsrum och en avskild sovdel, kompletterat med smart förvaring och ett stilrent badrum med bastu. Stora takfönster släpper in ett fantastiskt ljus och kaminen skapar en varm och inbjudande atmosfär året runt. Vinden en plats som enkelt blir föräldrarnas egen oas – en lugn reträtt från vardagen – eller ett perfekt, självständigt utrymme för en tonåring som vill ha lite mer avskildhet. Flexibiliteten gör att ytan kan anpassas efter livets olika skeden och behov, vilket ger huset en extra dimension av både komfort och möjligheter.
I källarplanet finns praktiska utrymmen såsom tvättstuga, gym/lekrum och flera förråd.
Renoveringar
2009/2010: Köksrenovering. Renovering badrum andra våningen. Ny takpapp och takpannor. Ny el dragen. Nya avlopps- och vattenstammar. Vinden inreddes.
2016: Fönster skrapades ner och målades.
2017: Gästtoalett entré samt toalett källare renoverades.
2018: Fondvägg och heltäckningsmatta
2019: Måla tak, väggar och lister. Anläggning av trädgård. Byggde pergula. Installation fläkt + div elarbete. Byggde vedställ.
2020: Installation nyckelfrittlås. Renovering båda trappor från v1. Målning av övrehall och trappa mm. Renovering av cykelskjul. Nytt trädäck + utekök. Installation utebelysning. Målning av fönsterbräder + under balkong. Målning av entré och hall. Färdigställt gym. Renovering av tvättstuga. La matta i entrén.
2021: Målade fondvägg. Renoverade trappa till vinden. Byggde uteförråd. Ny torktumlare. Byggde vinställ i köket.
2022: Byggt trädäck till hängmatta. Installerade billaddare.
2023: Ny diskmaskin. Målat fönster utvändigt och fönsterbrädor, väster.
2024: Spolat dräneringsrör. Ny brevlåda. Ny tvättmaskin. Avloppsspolning av alla rör och brunnar. Målat fönster utvändigt och fönsterbrädor, öster och gavel. Målat plåttak ovan entré.
2026: Ny belyst spegel i badrum på andra våningen.
Bra att veta
Ägaren av 10B delar nedan med grannhuset:
- Vedförråd, skiljs med varsin låst dörr.
- Dränkbar pump som pumpar undan ev vatten som är under huset.
- Dräneringsrör som går runt hela huset.
- Varje hus har en inspektionslucka till avloppsrören (under källartrappan).
I övrigt så är övrigt separerat:
- Separat inkommande vatten, fjärrvärme, fiber osv.
För att se hur tomtgränsen går se Situationsplan under fliken Dokumnet.
På resterande del av trädgårdsdelen har vi nyttjanderättsavtal.
Uppgifterna i objektsbeskrivningen härrör huvudsakligen från säljaren och kontrolleras av fastighetsmäklaren endast om omständigheterna ger anledning till detta.
För att ta del av de skyldigheter som ligger på dig som köpare så läs igenom pdf´n "Juridisk köparinformation" som finns att klicka ner under fliken "Dokument" och som delges i prospektet du erhåller på visning.
Förbered dig så mycket du kan för att få bästa förutsättningar när eventuell budgivning kommer igång genom att kontakta din bank angående lånelöfte eller så ber jag vår samarbetspartner kontakta dig för ett erbjudande. Äger du ditt boende idag? Behöver du sälja för att kunna köpa nytt? Jag hjälper dig gärna med en värdering och planerar din försäljning på bästa sätt.

